Zum Hauptinhalt springen Zur Suche springen Zur Hauptnavigation springen
Bis zu CHF 1'500 sparen + 3% Extra-Skonto sichern! | Nur für kurze Zeit
Beratung
Sales Contact Image
Verkaufsberatung: 044 508 339 7
Rückrufservice
Tage
Verlängert: 33% Rabatt auf Zubehör | Code: ACCESSOIRES33 | steigende Preise ab Mai wegen erhöhter Logistikkosten

CHF 2’349.00

-30%
UVP CHF 3’349.00
CHF-1’000.00

inkl. MwSt. | zzgl. Versandkosten

Angebotspreis

-33% Rabatt auf Zubehör | Code: ACCESSOIRES33

Durchschnittliche Bewertung von 4.8 von 5 Sternen

(8)

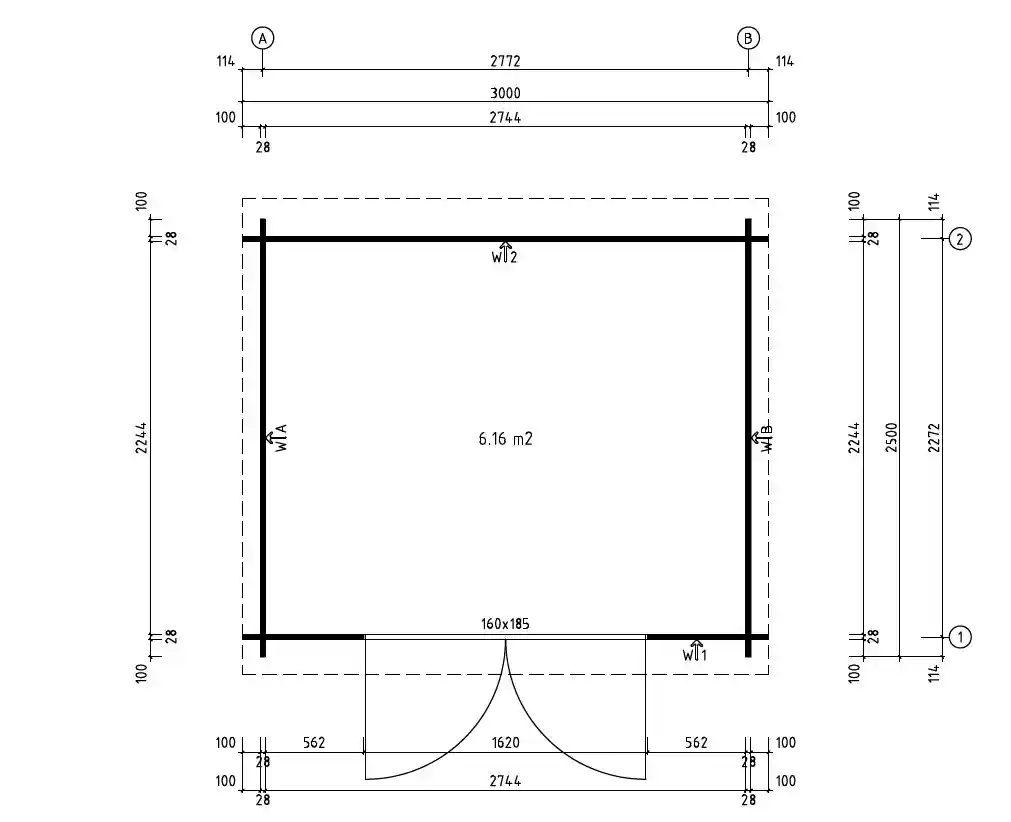
Pultdach Gartenhaus Maria

Die unten ausgewählten Zubehörartikel werden mit in den Warenkorb gelegt.
Purchase Advice Image
Persönliche Produkt- & Kaufberatung gewünscht Tel: 044 508 339 7
Fragen zum Produkt und Extra-Deal sichern?
WhatsApp-Beratung und Extra-Deal sichern!
Whatsapp Beratung
Lieferzeit ca. 2-3 Wochen
Paid Delivery Icon
Sicher bezahlen
Skonto Icon
-3% Skonto bei Vorkasse
Produktvarianten
Schutz-Imprägnierung wählen:
Ohne Schutz-Imprägnierung
Wandstärke wählen:
28 mm Wandstärke
Lieferung zum Wunschzeitraum
Passendes Zubehör zu diesem Produkt
Produktbeschreibung

Das Gartenhaus Maria der Marke Alpholz gehört zu unseren beliebtesten Gartenhäusern. Klein und kompakt besitzt es dennoch genügend Stellfläche, um dort alle deine Gartengeräte unterzubringen. Oder du nutzt es als Entspannungsort oder Kinderspielzimmer im Garten – auch dafür eignet sich das Gartenhaus Maria mit Pultdach ganz wunderbar.

In verschiedenen Wandstärken erhältlich

Optimale Größe, um alle Gartengeräte unterzubringen

Einfacher Aufbau durch Blockbohlenbauweise

Artikelbeschreibung Pultdach Gartenhaus Maria:

  • Außenmaß: 300 x 272 cm
  • Sockelmaß: 277 x 227 cm
  • Grundfläche: 6,4 m²
  • Rauminhalt: ca. 13,2 m³
  • Wandstärke: 28 mm

Im Lieferumfang des Pultdach Gartenhauses Maria enthalten:

  • Massivholzdach aus Nut- und Federbrettern
  • Verglasung der Türen aus Echtglas
  • hochwertige Doppeltür mit Leimholzrahmen
  • hochwertige Türschwelle aus Aluminium
  • Lüftungsgitter-Set für die bessere Luftzirkulation im Gartenhaus
  • Sturmleisten für Windsicherung
  • Schloss, Drückergarnitur & Montagematerial
  • Lieferung ohne Dachpappe
  • Lieferung in natur ohne Farbbehandlung
  • Lieferung ohne Holzfußboden (als Zubehör erhältlich)
  • Wenn bei Fenstern oder Türen Sprossen im Lieferumfang sind, so werden diese separat mitgeliefert.
    Es besteht somit immer die Wahl, dass Haus in einer klassischen Optik mit Sprossen/Holzkreuzen oder moderner ohne Sprossen zu gestalten.
Zubehör & Services
3 Zubehörartikel sind gerade ausgewählt (inkl. unseren Empfehlungen). Die passenden Mengen sind voreingestellt.

Das benötigst du für den Aufbau

Sparset Montagezubehör und Befestigung S

Mehr Details anzeigen

Sparset Montagezubehör und Befestigung S

Basic Zubehör Set mit bis zu 20% Ersparnis gegenüber dem Einzelkauf!

Das perfekte Set für den sicheren Aufbau und die Verankerung deines Gartenhauses – schützt zuverlässig vor Feuchtigkeit, Wind und Sturm. Mit einem Klick erhältst du alle wichtigen Komponenten in ausreichender Menge für einen langlebigen und stabilen Aufbau.

Bestehend aus:

  • Feuchtigkeitssperre (ca. 50 Stück) aus Spezial-Gummigranulat - Schützt vor aufsteigender Nässe, gleicht Unebenheiten aus und sorgt für Drainage und Luftzirkulation.
  • Sturmwinkel (Set: 4 Stück) - Zur sicheren Befestigung des Gartenhauses am Fundament (Schrauben & Dübel sind nicht im Lieferumfang enthalten).
  • Windverankerungs-Set (Set für 2 Seiten) - Verbindet obere und untere Blockbohlen und verhindert ein Auseinanderdrücken bei Sturm.

Unsere Empfehlung

Für eine optimale und dauerhafte Sturm- und Feuchtigkeitssicherung empfehlen wir den kombinierten Einsatz aller im Set enthaltenen Komponenten. So ist dein Gartenhaus bestmöglich befestigt und zuverlässig gegen Wind und Witterung geschützt.

CHF 139,00

Sparset Universal Holzfußboden-Set 9 m² - 18 mm Boden naturbelassen

Mehr Details anzeigen

Sparset Universal Holzfußboden-Set 9 m² - 18 mm Boden naturbelassen

Universal Holzfußboden-Set mit bis zu 20% Ersparnis gegenüber dem Einzelkauf!

Passend zum Haus – Mit diesem Set hast du mit einem Klick die passende Anzahl Holzfußboden Pakete für dein Wunschprodukt.

Inhalt des Sets:

  • Nut- und Federbretter mit 18 mm Stärke, naturbelassen
  • passende Anzahl Fußleisten, mit oder ohne werkseitiger Imprägnierung
  • kesseldruckimprägnierte Fundamenthölzer
  • die Imprägnierung kann ggf. farblich vom Haus abweichen
  • Material: nordische Fichte

Bitte beachte, dass der Fußboden individuell angepasst werden muss. Eine ausführliche Montageanleitung liegt dem Set bei.

Dieses Set ist für Häuser mit einer Grundfläche von 6,01 - 9 m² berechnet. Im Zweifelsfall empfehlen wir, die Artikel einzeln zu kaufen.

CHF 499,00

Universal Holzfußboden-Set mit bis zu 20% Ersparnis gegenüber dem Einzelkauf!

Passend zum Haus – Mit diesem Set hast du mit einem Klick die passende Anzahl Holzfußboden Pakete für dein Wunschprodukt.

Inhalt des Sets:

  • Nut- und Federbretter mit 28 mm Stärke, mit werkseitiger Imprägnierung
  • passende Anzahl Fußleisten, mit oder ohne werkseitiger Imprägnierung
  • kesseldruckimprägnierte Fundamenthölzer
  • die Imprägnierung kann ggf. farblich vom Haus abweichen
  • Material: nordische Fichte

Bitte beachte, dass der Fußboden individuell angepasst werden muss. Eine ausführliche Montageanleitung liegt dem Set bei.

Dieses Set ist für Häuser mit einer Grundfläche von 6,01 - 9 m² berechnet. Im Zweifelsfall empfehlen wir, die Artikel einzeln zu kaufen.

Universal Holzfußboden-Set mit bis zu 20% Ersparnis gegenüber dem Einzelkauf!

Passend zum Haus – Mit diesem Set hast du mit einem Klick die passende Anzahl Holzfußboden Pakete für dein Wunschprodukt.

Inhalt des Sets:

  • Nut- und Federbretter mit 18 mm Stärke, naturbelassen
  • passende Anzahl Fußleisten, mit oder ohne werkseitiger Imprägnierung
  • kesseldruckimprägnierte Fundamenthölzer
  • die Imprägnierung kann ggf. farblich vom Haus abweichen
  • Material: nordische Fichte

Bitte beachte, dass der Fußboden individuell angepasst werden muss. Eine ausführliche Montageanleitung liegt dem Set bei.

Dieses Set ist für Häuser mit einer Grundfläche von 6,01 - 9 m² berechnet. Im Zweifelsfall empfehlen wir, die Artikel einzeln zu kaufen.

Universal Holzfußboden-Set mit bis zu 20% Ersparnis gegenüber dem Einzelkauf!

Passend zum Haus – Mit diesem Set hast du mit einem Klick die passende Anzahl Holzfußboden Pakete für dein Wunschprodukt.

Inhalt des Sets:

  • Nut- und Federbretter mit 28 mm Stärke, mit werkseitiger Imprägnierung
  • passende Anzahl Fußleisten, mit oder ohne werkseitiger Imprägnierung
  • kesseldruckimprägnierte Fundamenthölzer
  • die Imprägnierung kann ggf. farblich vom Haus abweichen
  • Material: nordische Fichte

Bitte beachte, dass der Fußboden individuell angepasst werden muss. Eine ausführliche Montageanleitung liegt dem Set bei.

Dieses Set ist für Häuser mit einer Grundfläche von 6,01 - 9 m² berechnet. Im Zweifelsfall empfehlen wir, die Artikel einzeln zu kaufen.

Universal Holzfußboden-Set mit bis zu 20% Ersparnis gegenüber dem Einzelkauf!

Passend zum Haus – Mit diesem Set hast du mit einem Klick die passende Anzahl Holzfußboden Pakete für dein Wunschprodukt.

Inhalt des Sets:

  • Nut- und Federbretter mit 18 mm Stärke, naturbelassen
  • passende Anzahl Fußleisten, mit oder ohne werkseitiger Imprägnierung
  • kesseldruckimprägnierte Fundamenthölzer
  • die Imprägnierung kann ggf. farblich vom Haus abweichen
  • Material: nordische Fichte

Bitte beachte, dass der Fußboden individuell angepasst werden muss. Eine ausführliche Montageanleitung liegt dem Set bei.

Dieses Set ist für Häuser mit einer Grundfläche von 6,01 - 9 m² berechnet. Im Zweifelsfall empfehlen wir, die Artikel einzeln zu kaufen.

Sparset KSK Dacheindeckung - 9,5 m²

Mehr Details anzeigen

Sparset KSK Dacheindeckung - 9,5 m²

Dein Rundum-sorglos-Paket fürs regensichere Dach – das KSK-Komplettset spart dir bis zu 20 % gegenüber dem Einzelkauf!

 

Lieferumfang für Dachflächen bis 9,5 m²:

· Selbstklebende KSK-Dachbahn (5 Rollen)

· Unterdeckbahn Ondutiss Strong Air 120 (1 Rolle)

· Winkelprofil Typ 1 c (8 Stück) inkl. Spenglerschrauben mit Dichtscheiben

· Dachpappstifte (1 Päckchen)

 

KSK-Dachbahn:

Mit der selbstklebenden Bitumendachbahn gelingt die Dachabdichtung ganz einfach – ohne Flamme, ohne Stress! Ideal für Gartenhäuser, Saunahäuser oder Garagen – schnell, sicher und dauerhaft dicht.

· Abmessung: 0,5 x 5 m

· Stärke: ca. 1,5 mm

· Nutzbar für Dachneigungen ab 5°

· Verarbeitungstemperatur: +15 bis +35 °C

· Farbe: Anthrazit

 

Unterdeckbahn Ondutiss Strong Air 120:

Die hochwertige, dreilagige Unterspann- und Schalungsbahn aus Polypropylen bietet zuverlässigen Schutz vor Wind und Feuchtigkeit und unterstützt eine effiziente Wärmedämmung.

· Abmessung: 10 x 1 m

 

Dachpappstifte:

Die Dachpappstifte dienen zur robusten und wetterfesten Befestigung der Unterdeckbahn. Ihre verzinkte Oberfläche sorgt für einen zuverlässigen Schutz vor Korrosion.

· Abmessung: 2,5 x L 15 mm

· Ø Kopf: 8 mm

· Verzinkt

· Menge: ca. 200 g = ca. 133 Stück

 

Winkelprofil Typ 1 c:

Für eine langlebige und sichere Dacheindeckung: Das Aluminium-Winkelprofil Typ 1 c schützt die Übergänge zwischen Dacheindeckung und Dachrand zuverlässig vor eindringender Feuchtigkeit. Es sorgt nicht nur für dauerhaften Halt, sondern auch für einen sauberen, optisch ansprechenden Dachabschluss – ideal für Flachdächer und Pultdächer.

· Material: Aluminium

· Farbe: Anthrazit pulverbeschichtet

· Länge: 2 m

· Stärke: 0,8 mm

 

Spenglerschrauben mit Dichtscheiben:

Die hochwertigen Spenglerschrauben mit Dichtscheibe sorgen für eine dauerhaft dichte und stabile Befestigung der Winkelprofile. Tipp: Für den besten Halt empfehlen wir 4 Schrauben pro Profil.

· Abmessung: 4,5 mm Durchmesser und 20 mm Länge / Torx

· Farbe: Anthrazit RAL 7016

 

Das Zubehörpaket ist optimal auf die üblichen Bedarfsmengen abgestimmt. Je nach Art der Befestigung und Überlappung kann der Materialverbrauch leicht variieren.

CHF 609,00

Kastendachrinnenset, anthrazit metallic - für 1 Dachseite bis 6 m

Mehr Details anzeigen

Kastendachrinnenset, anthrazit metallic - für 1 Dachseite bis 6 m

Für Flach- und Pultdächer mit Seitenlänge bis 6 m, komplettes Set für 1 Holzhausseite, zum Kleben

Marley Dachrinnen-Sets schützen Wände und Fundamente von Garten- und Blockhäusern sicher und zuverlässig vor Schäden durch Regenwasser.

Vorteile:

  • Komplettes Set mit Rinnen, Fallrohren und Befestigungszubehör
  • Leicht zu montieren
  • Alles komplett im Set
  • witterungs-, UV- und temperaturbeständig
  • Schlagfester, hochwertiger Kunststoff
  • Top Qualität - Made in Germany
  • 10 Jahre Garantie

Set-Inhalt:   

  • 3x Kastenrinne 70, 2m
  • 2x Rinnenverbindungsschale 70
  • 2x Endstück für links und rechts 70
  • 1x Stutzen 70 / DN 53
  • 13x verstellbare Rinnenhalter
  • 1x Fallrohr DN 53, 2 m
  • 2x Rohrbogen DN 53, 45°
  • 1x Rohrschelle mit Ringschraube
  • 1x Spezialkleber
  • 1x Spezialreiniger

Marley Spezialkleber und -reiniger sind auf die Beschaffenheit des Kunststoffs der Dachrinnen optimal abgestimmt und garantieren sichere und dauerhaft dichte Verbindungen.

CHF 299,00

Rinneneinhang

Mehr Details anzeigen

Rinneneinhang

Ein Rinneneinhang ist der fachgerechte Abschluss an der Dachtraufe. Er ist das Übergangsblech von der Dachfläche zur Dachrinne. Der Einsatz sorgt für kontrollierten Wassereinlauf in die Dachrinne.

Material: Stahl verzinkt, pulverbeschichtet

Maße: A:60 mm, B:125 mm, D:15 mm

Länge: 200 cm

Stärke: 0,50 mm

Inkl. Spenglerschrauben

CHF 49,00

Montage und Services

Montage GartenHaus Block Ein-Raum bis 10m² - Basic - Montage Haus

Mehr Details anzeigen

Montage GartenHaus Block Ein-Raum bis 10m² - Basic - Montage Haus

GartenHaus Montageservice: Fachgerechte Montage vom Profi zum Bestpreis!

Wähle bequem aus unseren Montage-Sets das für dich passende Gesamtpaket.

Option 1  –  Basic Montage – Haus:

In diesem Set sind enthalten:

·         Der Aufbau des Produktes mit dem kompletten Aufbau ab Oberkante Fundament, inklusive allen im Bausatz enthaltenen Zubehörteilen. Tragewege zum Aufbauort bis 15 m sind im Preis inklusive.

·         Wenn du dich für das Sparset "Montagezubehör und Befestigung" entscheidest, ist auch die Montage dieses Sets inklusive. Wir empfehlen dieses dringend zum sicheren Aufbau. Es schützt dein Produkt effektiv gegen Feuchtigkeit und starken Wind.

Wenn du weiteres Zubehör montieren willst, kannst du das als Zusatzmontage dazu buchen. Die findest du direkt bei deinem Wunschprodukt..

Option 2  – Premium Montage  – Haus und Dacheindeckung:

In diesem Set sind enthalten:

·         Alle Leistungen aus Montage Option 1

·         Zusätzlich enthalten ist das fachgerechte Verlegen von Dachpappe und Dachschindeln, KSK oder EPDM-Folie. Das Material ist nicht im Lieferumfang. Bestelle hierfür eines der vorgeschlagenen Dacheindeckungs-Sets bzw. das Wunschmaterial in der vorgegebenen Menge. Bitte achte auf die richtige Anzahl/Größe der Dachbahn/Folie und Dachabschluss-Profile bzw. -Blenden. Wir beraten dich gern zu den Möglichkeiten!

·         Ein persönlicher Ansprechpartner begleitet dein Projekt von Beauftragung bis zum Abschluss der Montage.

Wenn du weiteres Zubehör montieren willst, kannst du das als Zusatzmontage dazu buchen. Die findest du direkt bei deinem Wunschprodukt..

Option 3 – Exklusiv Montage – Haus und Dacheindeckung + alle optionalen Zusatzmontagen und Sonderwünsche

Wenn du das volle Programm ohne „Wenn“ und „Aber“ willst, ist diese Option genau das Richtige für dich.

In diesem Set sind enthalten:

·         Alle Leistungen der Montage Optionen 1+2

·         Die Zusatzmontage des passenden Dachrinnensets

·         Die Zusatzmontage des Fußbodens (wenn der Fußboden im Lieferumfang des Bausatzes enthalten ist, ist die Montage bereits in der Basic-Option inbegriffen)

·         Verlegung der Bodendämmung

·         Imprägnierung während des Aufbaus (nur notwendig, wenn das Produkt nicht bereits ab Werk mit einer Imprägnierung versehen wurde)

·         Längere Tragewege zum Aufbauort bis 40 m sind im Preis inklusive

·         Wir gehen auf deine individuellen Sonderwünsche ein und finden passende Lösungen

Bitte beachte, dass das zu verbauende Zubehör als optionales Zubehör bestellt werden muss. Wir bieten unseren Montageservice nur für Original-GartenHaus Zubehör an.

Weitere Hinweise:

Imprägnierung: Fachgerechtes (einmaliges) Auftragen von Imprägnierungsmittel (nach Aufbau) an der Außenseite des Produktes. Das Material ist nicht im Lieferumfang. Bestelle bitte hierfür PGH Holzschutzgrund Imprägnierung aus dem Zubehör in vorgeschlagener Menge oder das passende Farbenset.

Die Imprägnierung schafft – in Verbindung mit einer Holzendbehandlung in Form von Deckfarbe oder Lasur – die Basis für langanhaltenden Schutz vor holzabbauenden Pilzen, Bläuebefall, holzzerstörende Insekten/Schimmel. Damit ist der Grundstein für langjährige Freude an deinem Wunschprodukt gelegt! (Die Holzendbehandlung kann erst ca. 24 Stunden nach der Imprägnierung erfolgen und kann daher hier nicht mit angeboten werden.)

Wir weisen an dieser Stelle darauf hin, dass eine Imprägnierung ab Werk – bei vielen Modellen direkt als Variante zu wählen – einen stärkeren Schutz bietet als die Imprägnierung nach dem Aufbau. Bei der Werksimprägnierung wird das Imprägnierungsmittel in der Fertigung maschinell aufgetragen. Hierbei werden insbesondere auch Nut und Feder effektiv geschützt.

Die Imprägnierung des Hauses, ob durch unser Montageteam oder ab Werk, stellt eine Erstbehandlung dar. Für einen optimalen Schutz deines Hauses ist nach einer Trocknungszeit ein Zweitanstrich mit einer geeigneten Lasur - bzw. Deckfarbe nötig. Wir empfehlen dir hierfür unsere qualitätsgeprüften PGH-Farben und Lasuren aus unserem Zubehör-Sortiment.

Der GartenHaus Montageservice auf einen Blick: Deine Vorteile

✓ Fachgerechter Aufbau durch unsere Montage-Profis

✓ Ein fester Ansprechpartner für dein Projekt

✓ Bestpreisgarantie und Qualität vom Marktführer

Montageservice der GartenHaus GmbH: So funktioniert‘s:
Nach deiner Bestellung vereinbaren wir mit dir einen Termin, besprechen deinen Auftrag und klären alle deine Fragen.

Wir schicken dir rechtzeitig die Kontaktdaten deines Montagepartners aus deiner Region. Wenn du fachliche Fragen oder Wünsche hast, kannst du dich direkt an einen kompetenten Ansprechpartner wenden. Du stimmst die letzten Fragen mit dem Montage-Team ab und vereinbarst dann einen Termin.

Bitte beachte, dass die Aufbauteams zum Einplanen deines Montagetermins ausreichend Vorlaufszeit benötigen. Damit der Aufbau zeitnah nach der Lieferung erfolgen kann, empfiehlt es sich, die Buchung des Montageservices mit der Produktbestellung vorzunehmen. Eine spätere Nachbestellung des Montageservices ist nach individueller Absprache und erfolgter Prüfung gegebenenfalls möglich. Auch die Montage von Dachrinne, Fußbodendämmung, optionalem Fußboden, sowie die Imprägnierung sind optional in unserem Zubehör am Produkt hinzubuchbar.

Bitte hab Verständnis, dass aus Sicherheitsgründen nur die über die GartenHaus GmbH bezogenen Originalteile verbaut werden.

Für die Vorbereitung der Baustelle und für die Bestellung von Montageleistungen gibt es wichtige Infos. Diese findest du im Dokument und Link

 

Hinweis zur Buchung des richtigen Montageservices: Grundsätzlich sind am Produkt immer die richtigen Montageservice Artikel hinterlegt. Wenn du eine Montage nachträglich buchst, achte bitte bei der Auswahl auf folgende Merkmale:

·         Walmdach: Mit 4 und mehr Dachflächen (siehe Beispielbilder). Alle anderen Dächer werden als „Standarddach“ betrachtet

·         Fußboden: Viele unserer Produkte werden bereits ab Werk mit einem Fußboden ausgeliefert. Für diese Produkte ist das entsprechende Montageprodukt inkl. Fußboden zu wählen. Wenn der Fußboden nicht im Lieferumfang ist, kannst du ihn einfach als separates Zubehör dazu buchen. Für diese Fußböden ist die Zusatzmontage für Fußböden zu wählen.

·         Mehrraum: Für Gebäude mit mindestens einem, durch eine Wand getrennten Raum oder Schlafboden

·         Quadratmeteranzahl: Bezieht sich auf die Grundfläche + Dachüberhang des zu montierenden Produktes

·         Bauart:

Block bezeichnet Häuser, bei denen die Bohlen ineinandergreifend ausgeführt sind (siehe folgendes Bild)

Schraubsystem bezieht sich auf Produkte, die in Elementen oder einzelnen Bohlen ausgeführt sind und im Rahmen verschraubt werden müssen. (siehe folgendes Bild)

CHF 1.289,00

GartenHaus Montageservice: Fachgerechte Montage vom Profi zum Bestpreis!

Wähle bequem aus unseren Montage-Sets das für dich passende Gesamtpaket.

Option 1  –  Basic Montage – Haus:

In diesem Set sind enthalten:

·         Der Aufbau des Produktes mit dem kompletten Aufbau ab Oberkante Fundament, inklusive allen im Bausatz enthaltenen Zubehörteilen. Tragewege zum Aufbauort bis 15 m sind im Preis inklusive.

·         Wenn du dich für das Sparset "Montagezubehör und Befestigung" entscheidest, ist auch die Montage dieses Sets inklusive. Wir empfehlen dieses dringend zum sicheren Aufbau. Es schützt dein Produkt effektiv gegen Feuchtigkeit und starken Wind.

Wenn du weiteres Zubehör montieren willst, kannst du das als Zusatzmontage dazu buchen. Die findest du direkt bei deinem Wunschprodukt..

Option 2  – Premium Montage  – Haus und Dacheindeckung:

In diesem Set sind enthalten:

·         Alle Leistungen aus Montage Option 1

·         Zusätzlich enthalten ist das fachgerechte Verlegen von Dachpappe und Dachschindeln, KSK oder EPDM-Folie. Das Material ist nicht im Lieferumfang. Bestelle hierfür eines der vorgeschlagenen Dacheindeckungs-Sets bzw. das Wunschmaterial in der vorgegebenen Menge. Bitte achte auf die richtige Anzahl/Größe der Dachbahn/Folie und Dachabschluss-Profile bzw. -Blenden. Wir beraten dich gern zu den Möglichkeiten!

·         Ein persönlicher Ansprechpartner begleitet dein Projekt von Beauftragung bis zum Abschluss der Montage.

Wenn du weiteres Zubehör montieren willst, kannst du das als Zusatzmontage dazu buchen. Die findest du direkt bei deinem Wunschprodukt..

Option 3 – Exklusiv Montage – Haus und Dacheindeckung + alle optionalen Zusatzmontagen und Sonderwünsche

Wenn du das volle Programm ohne „Wenn“ und „Aber“ willst, ist diese Option genau das Richtige für dich.

In diesem Set sind enthalten:

·         Alle Leistungen der Montage Optionen 1+2

·         Die Zusatzmontage des passenden Dachrinnensets

·         Die Zusatzmontage des Fußbodens (wenn der Fußboden im Lieferumfang des Bausatzes enthalten ist, ist die Montage bereits in der Basic-Option inbegriffen)

·         Verlegung der Bodendämmung

·         Imprägnierung während des Aufbaus (nur notwendig, wenn das Produkt nicht bereits ab Werk mit einer Imprägnierung versehen wurde)

·         Längere Tragewege zum Aufbauort bis 40 m sind im Preis inklusive

·         Wir gehen auf deine individuellen Sonderwünsche ein und finden passende Lösungen

Bitte beachte, dass das zu verbauende Zubehör als optionales Zubehör bestellt werden muss. Wir bieten unseren Montageservice nur für Original-GartenHaus Zubehör an.

Weitere Hinweise:

Imprägnierung: Fachgerechtes (einmaliges) Auftragen von Imprägnierungsmittel (nach Aufbau) an der Außenseite des Produktes. Das Material ist nicht im Lieferumfang. Bestelle bitte hierfür PGH Holzschutzgrund Imprägnierung aus dem Zubehör in vorgeschlagener Menge oder das passende Farbenset.

Die Imprägnierung schafft – in Verbindung mit einer Holzendbehandlung in Form von Deckfarbe oder Lasur – die Basis für langanhaltenden Schutz vor holzabbauenden Pilzen, Bläuebefall, holzzerstörende Insekten/Schimmel. Damit ist der Grundstein für langjährige Freude an deinem Wunschprodukt gelegt! (Die Holzendbehandlung kann erst ca. 24 Stunden nach der Imprägnierung erfolgen und kann daher hier nicht mit angeboten werden.)

Wir weisen an dieser Stelle darauf hin, dass eine Imprägnierung ab Werk – bei vielen Modellen direkt als Variante zu wählen – einen stärkeren Schutz bietet als die Imprägnierung nach dem Aufbau. Bei der Werksimprägnierung wird das Imprägnierungsmittel in der Fertigung maschinell aufgetragen. Hierbei werden insbesondere auch Nut und Feder effektiv geschützt.

Die Imprägnierung des Hauses, ob durch unser Montageteam oder ab Werk, stellt eine Erstbehandlung dar. Für einen optimalen Schutz deines Hauses ist nach einer Trocknungszeit ein Zweitanstrich mit einer geeigneten Lasur - bzw. Deckfarbe nötig. Wir empfehlen dir hierfür unsere qualitätsgeprüften PGH-Farben und Lasuren aus unserem Zubehör-Sortiment.

Der GartenHaus Montageservice auf einen Blick: Deine Vorteile

✓ Fachgerechter Aufbau durch unsere Montage-Profis

✓ Ein fester Ansprechpartner für dein Projekt

✓ Bestpreisgarantie und Qualität vom Marktführer

Montageservice der GartenHaus GmbH: So funktioniert‘s:
Nach deiner Bestellung vereinbaren wir mit dir einen Termin, besprechen deinen Auftrag und klären alle deine Fragen.

Wir schicken dir rechtzeitig die Kontaktdaten deines Montagepartners aus deiner Region. Wenn du fachliche Fragen oder Wünsche hast, kannst du dich direkt an einen kompetenten Ansprechpartner wenden. Du stimmst die letzten Fragen mit dem Montage-Team ab und vereinbarst dann einen Termin.

Bitte beachte, dass die Aufbauteams zum Einplanen deines Montagetermins ausreichend Vorlaufszeit benötigen. Damit der Aufbau zeitnah nach der Lieferung erfolgen kann, empfiehlt es sich, die Buchung des Montageservices mit der Produktbestellung vorzunehmen. Eine spätere Nachbestellung des Montageservices ist nach individueller Absprache und erfolgter Prüfung gegebenenfalls möglich. Auch die Montage von Dachrinne, Fußbodendämmung, optionalem Fußboden, sowie die Imprägnierung sind optional in unserem Zubehör am Produkt hinzubuchbar.

Bitte hab Verständnis, dass aus Sicherheitsgründen nur die über die GartenHaus GmbH bezogenen Originalteile verbaut werden.

Für die Vorbereitung der Baustelle und für die Bestellung von Montageleistungen gibt es wichtige Infos. Diese findest du im Dokument und Link

 

Hinweis zur Buchung des richtigen Montageservices: Grundsätzlich sind am Produkt immer die richtigen Montageservice Artikel hinterlegt. Wenn du eine Montage nachträglich buchst, achte bitte bei der Auswahl auf folgende Merkmale:

·         Walmdach: Mit 4 und mehr Dachflächen (siehe Beispielbilder). Alle anderen Dächer werden als „Standarddach“ betrachtet

·         Fußboden: Viele unserer Produkte werden bereits ab Werk mit einem Fußboden ausgeliefert. Für diese Produkte ist das entsprechende Montageprodukt inkl. Fußboden zu wählen. Wenn der Fußboden nicht im Lieferumfang ist, kannst du ihn einfach als separates Zubehör dazu buchen. Für diese Fußböden ist die Zusatzmontage für Fußböden zu wählen.

·         Mehrraum: Für Gebäude mit mindestens einem, durch eine Wand getrennten Raum oder Schlafboden

·         Quadratmeteranzahl: Bezieht sich auf die Grundfläche + Dachüberhang des zu montierenden Produktes

·         Bauart:

Block bezeichnet Häuser, bei denen die Bohlen ineinandergreifend ausgeführt sind (siehe folgendes Bild)

Schraubsystem bezieht sich auf Produkte, die in Elementen oder einzelnen Bohlen ausgeführt sind und im Rahmen verschraubt werden müssen. (siehe folgendes Bild)

GartenHaus Montageservice: Fachgerechte Montage vom Profi zum Bestpreis!

Wähle bequem aus unseren Montage-Sets das für dich passende Gesamtpaket.

Option 1  –  Basic Montage – Haus:

In diesem Set sind enthalten:

·         Der Aufbau des Produktes mit dem kompletten Aufbau ab Oberkante Fundament, inklusive allen im Bausatz enthaltenen Zubehörteilen. Tragewege zum Aufbauort bis 15 m sind im Preis inklusive.

·         Wenn du dich für das Sparset "Montagezubehör und Befestigung" entscheidest, ist auch die Montage dieses Sets inklusive. Wir empfehlen dieses dringend zum sicheren Aufbau. Es schützt dein Produkt effektiv gegen Feuchtigkeit und starken Wind.

Wenn du weiteres Zubehör montieren willst, kannst du das als Zusatzmontage dazu buchen. Die findest du direkt bei deinem Wunschprodukt..

Option 2  – Premium Montage  – Haus und Dacheindeckung:

In diesem Set sind enthalten:

·         Alle Leistungen aus Montage Option 1

·         Zusätzlich enthalten ist das fachgerechte Verlegen von Dachpappe und Dachschindeln, KSK oder EPDM-Folie. Das Material ist nicht im Lieferumfang. Bestelle hierfür eines der vorgeschlagenen Dacheindeckungs-Sets bzw. das Wunschmaterial in der vorgegebenen Menge. Bitte achte auf die richtige Anzahl/Größe der Dachbahn/Folie und Dachabschluss-Profile bzw. -Blenden. Wir beraten dich gern zu den Möglichkeiten!

·         Ein persönlicher Ansprechpartner begleitet dein Projekt von Beauftragung bis zum Abschluss der Montage.

Wenn du weiteres Zubehör montieren willst, kannst du das als Zusatzmontage dazu buchen. Die findest du direkt bei deinem Wunschprodukt..

Option 3 – Exklusiv Montage – Haus und Dacheindeckung + alle optionalen Zusatzmontagen und Sonderwünsche

Wenn du das volle Programm ohne „Wenn“ und „Aber“ willst, ist diese Option genau das Richtige für dich.

In diesem Set sind enthalten:

·         Alle Leistungen der Montage Optionen 1+2

·         Die Zusatzmontage des passenden Dachrinnensets

·         Die Zusatzmontage des Fußbodens (wenn der Fußboden im Lieferumfang des Bausatzes enthalten ist, ist die Montage bereits in der Basic-Option inbegriffen)

·         Verlegung der Bodendämmung

·         Imprägnierung während des Aufbaus (nur notwendig, wenn das Produkt nicht bereits ab Werk mit einer Imprägnierung versehen wurde)

·         Längere Tragewege zum Aufbauort bis 40 m sind im Preis inklusive

·         Wir gehen auf deine individuellen Sonderwünsche ein und finden passende Lösungen

Bitte beachte, dass das zu verbauende Zubehör als optionales Zubehör bestellt werden muss. Wir bieten unseren Montageservice nur für Original-GartenHaus Zubehör an.

Weitere Hinweise:

Imprägnierung: Fachgerechtes (einmaliges) Auftragen von Imprägnierungsmittel (nach Aufbau) an der Außenseite des Produktes. Das Material ist nicht im Lieferumfang. Bestelle bitte hierfür PGH Holzschutzgrund Imprägnierung aus dem Zubehör in vorgeschlagener Menge oder das passende Farbenset.

Die Imprägnierung schafft – in Verbindung mit einer Holzendbehandlung in Form von Deckfarbe oder Lasur – die Basis für langanhaltenden Schutz vor holzabbauenden Pilzen, Bläuebefall, holzzerstörende Insekten/Schimmel. Damit ist der Grundstein für langjährige Freude an deinem Wunschprodukt gelegt! (Die Holzendbehandlung kann erst ca. 24 Stunden nach der Imprägnierung erfolgen und kann daher hier nicht mit angeboten werden.)

Wir weisen an dieser Stelle darauf hin, dass eine Imprägnierung ab Werk – bei vielen Modellen direkt als Variante zu wählen – einen stärkeren Schutz bietet als die Imprägnierung nach dem Aufbau. Bei der Werksimprägnierung wird das Imprägnierungsmittel in der Fertigung maschinell aufgetragen. Hierbei werden insbesondere auch Nut und Feder effektiv geschützt.

Die Imprägnierung des Hauses, ob durch unser Montageteam oder ab Werk, stellt eine Erstbehandlung dar. Für einen optimalen Schutz deines Hauses ist nach einer Trocknungszeit ein Zweitanstrich mit einer geeigneten Lasur - bzw. Deckfarbe nötig. Wir empfehlen dir hierfür unsere qualitätsgeprüften PGH-Farben und Lasuren aus unserem Zubehör-Sortiment.

Der GartenHaus Montageservice auf einen Blick: Deine Vorteile

✓ Fachgerechter Aufbau durch unsere Montage-Profis

✓ Ein fester Ansprechpartner für dein Projekt

✓ Bestpreisgarantie und Qualität vom Marktführer

Montageservice der GartenHaus GmbH: So funktioniert‘s:
Nach deiner Bestellung vereinbaren wir mit dir einen Termin, besprechen deinen Auftrag und klären alle deine Fragen.

Wir schicken dir rechtzeitig die Kontaktdaten deines Montagepartners aus deiner Region. Wenn du fachliche Fragen oder Wünsche hast, kannst du dich direkt an einen kompetenten Ansprechpartner wenden. Du stimmst die letzten Fragen mit dem Montage-Team ab und vereinbarst dann einen Termin.

Bitte beachte, dass die Aufbauteams zum Einplanen deines Montagetermins ausreichend Vorlaufszeit benötigen. Damit der Aufbau zeitnah nach der Lieferung erfolgen kann, empfiehlt es sich, die Buchung des Montageservices mit der Produktbestellung vorzunehmen. Eine spätere Nachbestellung des Montageservices ist nach individueller Absprache und erfolgter Prüfung gegebenenfalls möglich. Auch die Montage von Dachrinne, Fußbodendämmung, optionalem Fußboden, sowie die Imprägnierung sind optional in unserem Zubehör am Produkt hinzubuchbar.

Bitte hab Verständnis, dass aus Sicherheitsgründen nur die über die GartenHaus GmbH bezogenen Originalteile verbaut werden.

Für die Vorbereitung der Baustelle und für die Bestellung von Montageleistungen gibt es wichtige Infos. Diese findest du im Dokument und Link

 

Hinweis zur Buchung des richtigen Montageservices: Grundsätzlich sind am Produkt immer die richtigen Montageservice Artikel hinterlegt. Wenn du eine Montage nachträglich buchst, achte bitte bei der Auswahl auf folgende Merkmale:

·         Walmdach: Mit 4 und mehr Dachflächen (siehe Beispielbilder). Alle anderen Dächer werden als „Standarddach“ betrachtet

·         Fußboden: Viele unserer Produkte werden bereits ab Werk mit einem Fußboden ausgeliefert. Für diese Produkte ist das entsprechende Montageprodukt inkl. Fußboden zu wählen. Wenn der Fußboden nicht im Lieferumfang ist, kannst du ihn einfach als separates Zubehör dazu buchen. Für diese Fußböden ist die Zusatzmontage für Fußböden zu wählen.

·         Mehrraum: Für Gebäude mit mindestens einem, durch eine Wand getrennten Raum oder Schlafboden

·         Quadratmeteranzahl: Bezieht sich auf die Grundfläche + Dachüberhang des zu montierenden Produktes

·         Bauart:

Block bezeichnet Häuser, bei denen die Bohlen ineinandergreifend ausgeführt sind (siehe folgendes Bild)

Schraubsystem bezieht sich auf Produkte, die in Elementen oder einzelnen Bohlen ausgeführt sind und im Rahmen verschraubt werden müssen. (siehe folgendes Bild)

GartenHaus Montageservice: Fachgerechte Montage vom Profi zum Bestpreis!

Wähle bequem aus unseren Montage-Sets das für dich passende Gesamtpaket.

Option 1  –  Basic Montage – Haus:

In diesem Set sind enthalten:

·         Der Aufbau des Produktes mit dem kompletten Aufbau ab Oberkante Fundament, inklusive allen im Bausatz enthaltenen Zubehörteilen. Tragewege zum Aufbauort bis 15 m sind im Preis inklusive.

·         Wenn du dich für das Sparset "Montagezubehör und Befestigung" entscheidest, ist auch die Montage dieses Sets inklusive. Wir empfehlen dieses dringend zum sicheren Aufbau. Es schützt dein Produkt effektiv gegen Feuchtigkeit und starken Wind.

Wenn du weiteres Zubehör montieren willst, kannst du das als Zusatzmontage dazu buchen. Die findest du direkt bei deinem Wunschprodukt..

Option 2  – Premium Montage  – Haus und Dacheindeckung:

In diesem Set sind enthalten:

·         Alle Leistungen aus Montage Option 1

·         Zusätzlich enthalten ist das fachgerechte Verlegen von Dachpappe und Dachschindeln, KSK oder EPDM-Folie. Das Material ist nicht im Lieferumfang. Bestelle hierfür eines der vorgeschlagenen Dacheindeckungs-Sets bzw. das Wunschmaterial in der vorgegebenen Menge. Bitte achte auf die richtige Anzahl/Größe der Dachbahn/Folie und Dachabschluss-Profile bzw. -Blenden. Wir beraten dich gern zu den Möglichkeiten!

·         Ein persönlicher Ansprechpartner begleitet dein Projekt von Beauftragung bis zum Abschluss der Montage.

Wenn du weiteres Zubehör montieren willst, kannst du das als Zusatzmontage dazu buchen. Die findest du direkt bei deinem Wunschprodukt..

Option 3 – Exklusiv Montage – Haus und Dacheindeckung + alle optionalen Zusatzmontagen und Sonderwünsche

Wenn du das volle Programm ohne „Wenn“ und „Aber“ willst, ist diese Option genau das Richtige für dich.

In diesem Set sind enthalten:

·         Alle Leistungen der Montage Optionen 1+2

·         Die Zusatzmontage des passenden Dachrinnensets

·         Die Zusatzmontage des Fußbodens (wenn der Fußboden im Lieferumfang des Bausatzes enthalten ist, ist die Montage bereits in der Basic-Option inbegriffen)

·         Verlegung der Bodendämmung

·         Imprägnierung während des Aufbaus (nur notwendig, wenn das Produkt nicht bereits ab Werk mit einer Imprägnierung versehen wurde)

·         Längere Tragewege zum Aufbauort bis 40 m sind im Preis inklusive

·         Wir gehen auf deine individuellen Sonderwünsche ein und finden passende Lösungen

Bitte beachte, dass das zu verbauende Zubehör als optionales Zubehör bestellt werden muss. Wir bieten unseren Montageservice nur für Original-GartenHaus Zubehör an.

Weitere Hinweise:

Imprägnierung: Fachgerechtes (einmaliges) Auftragen von Imprägnierungsmittel (nach Aufbau) an der Außenseite des Produktes. Das Material ist nicht im Lieferumfang. Bestelle bitte hierfür PGH Holzschutzgrund Imprägnierung aus dem Zubehör in vorgeschlagener Menge oder das passende Farbenset.

Die Imprägnierung schafft – in Verbindung mit einer Holzendbehandlung in Form von Deckfarbe oder Lasur – die Basis für langanhaltenden Schutz vor holzabbauenden Pilzen, Bläuebefall, holzzerstörende Insekten/Schimmel. Damit ist der Grundstein für langjährige Freude an deinem Wunschprodukt gelegt! (Die Holzendbehandlung kann erst ca. 24 Stunden nach der Imprägnierung erfolgen und kann daher hier nicht mit angeboten werden.)

Wir weisen an dieser Stelle darauf hin, dass eine Imprägnierung ab Werk – bei vielen Modellen direkt als Variante zu wählen – einen stärkeren Schutz bietet als die Imprägnierung nach dem Aufbau. Bei der Werksimprägnierung wird das Imprägnierungsmittel in der Fertigung maschinell aufgetragen. Hierbei werden insbesondere auch Nut und Feder effektiv geschützt.

Die Imprägnierung des Hauses, ob durch unser Montageteam oder ab Werk, stellt eine Erstbehandlung dar. Für einen optimalen Schutz deines Hauses ist nach einer Trocknungszeit ein Zweitanstrich mit einer geeigneten Lasur - bzw. Deckfarbe nötig. Wir empfehlen dir hierfür unsere qualitätsgeprüften PGH-Farben und Lasuren aus unserem Zubehör-Sortiment.

Der GartenHaus Montageservice auf einen Blick: Deine Vorteile

✓ Fachgerechter Aufbau durch unsere Montage-Profis

✓ Ein fester Ansprechpartner für dein Projekt

✓ Bestpreisgarantie und Qualität vom Marktführer

Montageservice der GartenHaus GmbH: So funktioniert‘s:
Nach deiner Bestellung vereinbaren wir mit dir einen Termin, besprechen deinen Auftrag und klären alle deine Fragen.

Wir schicken dir rechtzeitig die Kontaktdaten deines Montagepartners aus deiner Region. Wenn du fachliche Fragen oder Wünsche hast, kannst du dich direkt an einen kompetenten Ansprechpartner wenden. Du stimmst die letzten Fragen mit dem Montage-Team ab und vereinbarst dann einen Termin.

Bitte beachte, dass die Aufbauteams zum Einplanen deines Montagetermins ausreichend Vorlaufszeit benötigen. Damit der Aufbau zeitnah nach der Lieferung erfolgen kann, empfiehlt es sich, die Buchung des Montageservices mit der Produktbestellung vorzunehmen. Eine spätere Nachbestellung des Montageservices ist nach individueller Absprache und erfolgter Prüfung gegebenenfalls möglich. Auch die Montage von Dachrinne, Fußbodendämmung, optionalem Fußboden, sowie die Imprägnierung sind optional in unserem Zubehör am Produkt hinzubuchbar.

Bitte hab Verständnis, dass aus Sicherheitsgründen nur die über die GartenHaus GmbH bezogenen Originalteile verbaut werden.

Für die Vorbereitung der Baustelle und für die Bestellung von Montageleistungen gibt es wichtige Infos. Diese findest du im Dokument und Link

 

Hinweis zur Buchung des richtigen Montageservices: Grundsätzlich sind am Produkt immer die richtigen Montageservice Artikel hinterlegt. Wenn du eine Montage nachträglich buchst, achte bitte bei der Auswahl auf folgende Merkmale:

·         Walmdach: Mit 4 und mehr Dachflächen (siehe Beispielbilder). Alle anderen Dächer werden als „Standarddach“ betrachtet

·         Fußboden: Viele unserer Produkte werden bereits ab Werk mit einem Fußboden ausgeliefert. Für diese Produkte ist das entsprechende Montageprodukt inkl. Fußboden zu wählen. Wenn der Fußboden nicht im Lieferumfang ist, kannst du ihn einfach als separates Zubehör dazu buchen. Für diese Fußböden ist die Zusatzmontage für Fußböden zu wählen.

·         Mehrraum: Für Gebäude mit mindestens einem, durch eine Wand getrennten Raum oder Schlafboden

·         Quadratmeteranzahl: Bezieht sich auf die Grundfläche + Dachüberhang des zu montierenden Produktes

·         Bauart:

Block bezeichnet Häuser, bei denen die Bohlen ineinandergreifend ausgeführt sind (siehe folgendes Bild)

Schraubsystem bezieht sich auf Produkte, die in Elementen oder einzelnen Bohlen ausgeführt sind und im Rahmen verschraubt werden müssen. (siehe folgendes Bild)

GartenHaus Montageservice: Fachgerechte Montage vom Profi zum Bestpreis!

Wähle bequem aus unseren Montage-Sets das für dich passende Gesamtpaket.

Option 1  –  Basic Montage – Haus:

In diesem Set sind enthalten:

·         Der Aufbau des Produktes mit dem kompletten Aufbau ab Oberkante Fundament, inklusive allen im Bausatz enthaltenen Zubehörteilen. Tragewege zum Aufbauort bis 15 m sind im Preis inklusive.

·         Wenn du dich für das Sparset "Montagezubehör und Befestigung" entscheidest, ist auch die Montage dieses Sets inklusive. Wir empfehlen dieses dringend zum sicheren Aufbau. Es schützt dein Produkt effektiv gegen Feuchtigkeit und starken Wind.

Wenn du weiteres Zubehör montieren willst, kannst du das als Zusatzmontage dazu buchen. Die findest du direkt bei deinem Wunschprodukt..

Option 2  – Premium Montage  – Haus und Dacheindeckung:

In diesem Set sind enthalten:

·         Alle Leistungen aus Montage Option 1

·         Zusätzlich enthalten ist das fachgerechte Verlegen von Dachpappe und Dachschindeln, KSK oder EPDM-Folie. Das Material ist nicht im Lieferumfang. Bestelle hierfür eines der vorgeschlagenen Dacheindeckungs-Sets bzw. das Wunschmaterial in der vorgegebenen Menge. Bitte achte auf die richtige Anzahl/Größe der Dachbahn/Folie und Dachabschluss-Profile bzw. -Blenden. Wir beraten dich gern zu den Möglichkeiten!

·         Ein persönlicher Ansprechpartner begleitet dein Projekt von Beauftragung bis zum Abschluss der Montage.

Wenn du weiteres Zubehör montieren willst, kannst du das als Zusatzmontage dazu buchen. Die findest du direkt bei deinem Wunschprodukt..

Option 3 – Exklusiv Montage – Haus und Dacheindeckung + alle optionalen Zusatzmontagen und Sonderwünsche

Wenn du das volle Programm ohne „Wenn“ und „Aber“ willst, ist diese Option genau das Richtige für dich.

In diesem Set sind enthalten:

·         Alle Leistungen der Montage Optionen 1+2

·         Die Zusatzmontage des passenden Dachrinnensets

·         Die Zusatzmontage des Fußbodens (wenn der Fußboden im Lieferumfang des Bausatzes enthalten ist, ist die Montage bereits in der Basic-Option inbegriffen)

·         Verlegung der Bodendämmung

·         Imprägnierung während des Aufbaus (nur notwendig, wenn das Produkt nicht bereits ab Werk mit einer Imprägnierung versehen wurde)

·         Längere Tragewege zum Aufbauort bis 40 m sind im Preis inklusive

·         Wir gehen auf deine individuellen Sonderwünsche ein und finden passende Lösungen

Bitte beachte, dass das zu verbauende Zubehör als optionales Zubehör bestellt werden muss. Wir bieten unseren Montageservice nur für Original-GartenHaus Zubehör an.

Weitere Hinweise:

Imprägnierung: Fachgerechtes (einmaliges) Auftragen von Imprägnierungsmittel (nach Aufbau) an der Außenseite des Produktes. Das Material ist nicht im Lieferumfang. Bestelle bitte hierfür PGH Holzschutzgrund Imprägnierung aus dem Zubehör in vorgeschlagener Menge oder das passende Farbenset.

Die Imprägnierung schafft – in Verbindung mit einer Holzendbehandlung in Form von Deckfarbe oder Lasur – die Basis für langanhaltenden Schutz vor holzabbauenden Pilzen, Bläuebefall, holzzerstörende Insekten/Schimmel. Damit ist der Grundstein für langjährige Freude an deinem Wunschprodukt gelegt! (Die Holzendbehandlung kann erst ca. 24 Stunden nach der Imprägnierung erfolgen und kann daher hier nicht mit angeboten werden.)

Wir weisen an dieser Stelle darauf hin, dass eine Imprägnierung ab Werk – bei vielen Modellen direkt als Variante zu wählen – einen stärkeren Schutz bietet als die Imprägnierung nach dem Aufbau. Bei der Werksimprägnierung wird das Imprägnierungsmittel in der Fertigung maschinell aufgetragen. Hierbei werden insbesondere auch Nut und Feder effektiv geschützt.

Die Imprägnierung des Hauses, ob durch unser Montageteam oder ab Werk, stellt eine Erstbehandlung dar. Für einen optimalen Schutz deines Hauses ist nach einer Trocknungszeit ein Zweitanstrich mit einer geeigneten Lasur - bzw. Deckfarbe nötig. Wir empfehlen dir hierfür unsere qualitätsgeprüften PGH-Farben und Lasuren aus unserem Zubehör-Sortiment.

Der GartenHaus Montageservice auf einen Blick: Deine Vorteile

✓ Fachgerechter Aufbau durch unsere Montage-Profis

✓ Ein fester Ansprechpartner für dein Projekt

✓ Bestpreisgarantie und Qualität vom Marktführer

Montageservice der GartenHaus GmbH: So funktioniert‘s:
Nach deiner Bestellung vereinbaren wir mit dir einen Termin, besprechen deinen Auftrag und klären alle deine Fragen.

Wir schicken dir rechtzeitig die Kontaktdaten deines Montagepartners aus deiner Region. Wenn du fachliche Fragen oder Wünsche hast, kannst du dich direkt an einen kompetenten Ansprechpartner wenden. Du stimmst die letzten Fragen mit dem Montage-Team ab und vereinbarst dann einen Termin.

Bitte beachte, dass die Aufbauteams zum Einplanen deines Montagetermins ausreichend Vorlaufszeit benötigen. Damit der Aufbau zeitnah nach der Lieferung erfolgen kann, empfiehlt es sich, die Buchung des Montageservices mit der Produktbestellung vorzunehmen. Eine spätere Nachbestellung des Montageservices ist nach individueller Absprache und erfolgter Prüfung gegebenenfalls möglich. Auch die Montage von Dachrinne, Fußbodendämmung, optionalem Fußboden, sowie die Imprägnierung sind optional in unserem Zubehör am Produkt hinzubuchbar.

Bitte hab Verständnis, dass aus Sicherheitsgründen nur die über die GartenHaus GmbH bezogenen Originalteile verbaut werden.

Für die Vorbereitung der Baustelle und für die Bestellung von Montageleistungen gibt es wichtige Infos. Diese findest du im Dokument und Link

 

Hinweis zur Buchung des richtigen Montageservices: Grundsätzlich sind am Produkt immer die richtigen Montageservice Artikel hinterlegt. Wenn du eine Montage nachträglich buchst, achte bitte bei der Auswahl auf folgende Merkmale:

·         Walmdach: Mit 4 und mehr Dachflächen (siehe Beispielbilder). Alle anderen Dächer werden als „Standarddach“ betrachtet

·         Fußboden: Viele unserer Produkte werden bereits ab Werk mit einem Fußboden ausgeliefert. Für diese Produkte ist das entsprechende Montageprodukt inkl. Fußboden zu wählen. Wenn der Fußboden nicht im Lieferumfang ist, kannst du ihn einfach als separates Zubehör dazu buchen. Für diese Fußböden ist die Zusatzmontage für Fußböden zu wählen.

·         Mehrraum: Für Gebäude mit mindestens einem, durch eine Wand getrennten Raum oder Schlafboden

·         Quadratmeteranzahl: Bezieht sich auf die Grundfläche + Dachüberhang des zu montierenden Produktes

·         Bauart:

Block bezeichnet Häuser, bei denen die Bohlen ineinandergreifend ausgeführt sind (siehe folgendes Bild)

Schraubsystem bezieht sich auf Produkte, die in Elementen oder einzelnen Bohlen ausgeführt sind und im Rahmen verschraubt werden müssen. (siehe folgendes Bild)

GartenHaus Montageservice: Fachgerechte Montage vom Profi zum Bestpreis!

Wähle bequem aus unseren Montage-Sets das für dich passende Gesamtpaket.

Option 1  –  Basic Montage – Haus:

In diesem Set sind enthalten:

·         Der Aufbau des Produktes mit dem kompletten Aufbau ab Oberkante Fundament, inklusive allen im Bausatz enthaltenen Zubehörteilen. Tragewege zum Aufbauort bis 15 m sind im Preis inklusive.

·         Wenn du dich für das Sparset "Montagezubehör und Befestigung" entscheidest, ist auch die Montage dieses Sets inklusive. Wir empfehlen dieses dringend zum sicheren Aufbau. Es schützt dein Produkt effektiv gegen Feuchtigkeit und starken Wind.

Wenn du weiteres Zubehör montieren willst, kannst du das als Zusatzmontage dazu buchen. Die findest du direkt bei deinem Wunschprodukt..

Option 2  – Premium Montage  – Haus und Dacheindeckung:

In diesem Set sind enthalten:

·         Alle Leistungen aus Montage Option 1

·         Zusätzlich enthalten ist das fachgerechte Verlegen von Dachpappe und Dachschindeln, KSK oder EPDM-Folie. Das Material ist nicht im Lieferumfang. Bestelle hierfür eines der vorgeschlagenen Dacheindeckungs-Sets bzw. das Wunschmaterial in der vorgegebenen Menge. Bitte achte auf die richtige Anzahl/Größe der Dachbahn/Folie und Dachabschluss-Profile bzw. -Blenden. Wir beraten dich gern zu den Möglichkeiten!

·         Ein persönlicher Ansprechpartner begleitet dein Projekt von Beauftragung bis zum Abschluss der Montage.

Wenn du weiteres Zubehör montieren willst, kannst du das als Zusatzmontage dazu buchen. Die findest du direkt bei deinem Wunschprodukt..

Option 3 – Exklusiv Montage – Haus und Dacheindeckung + alle optionalen Zusatzmontagen und Sonderwünsche

Wenn du das volle Programm ohne „Wenn“ und „Aber“ willst, ist diese Option genau das Richtige für dich.

In diesem Set sind enthalten:

·         Alle Leistungen der Montage Optionen 1+2

·         Die Zusatzmontage des passenden Dachrinnensets

·         Die Zusatzmontage des Fußbodens (wenn der Fußboden im Lieferumfang des Bausatzes enthalten ist, ist die Montage bereits in der Basic-Option inbegriffen)

·         Verlegung der Bodendämmung

·         Imprägnierung während des Aufbaus (nur notwendig, wenn das Produkt nicht bereits ab Werk mit einer Imprägnierung versehen wurde)

·         Längere Tragewege zum Aufbauort bis 40 m sind im Preis inklusive

·         Wir gehen auf deine individuellen Sonderwünsche ein und finden passende Lösungen

Bitte beachte, dass das zu verbauende Zubehör als optionales Zubehör bestellt werden muss. Wir bieten unseren Montageservice nur für Original-GartenHaus Zubehör an.

Weitere Hinweise:

Imprägnierung: Fachgerechtes (einmaliges) Auftragen von Imprägnierungsmittel (nach Aufbau) an der Außenseite des Produktes. Das Material ist nicht im Lieferumfang. Bestelle bitte hierfür PGH Holzschutzgrund Imprägnierung aus dem Zubehör in vorgeschlagener Menge oder das passende Farbenset.

Die Imprägnierung schafft – in Verbindung mit einer Holzendbehandlung in Form von Deckfarbe oder Lasur – die Basis für langanhaltenden Schutz vor holzabbauenden Pilzen, Bläuebefall, holzzerstörende Insekten/Schimmel. Damit ist der Grundstein für langjährige Freude an deinem Wunschprodukt gelegt! (Die Holzendbehandlung kann erst ca. 24 Stunden nach der Imprägnierung erfolgen und kann daher hier nicht mit angeboten werden.)

Wir weisen an dieser Stelle darauf hin, dass eine Imprägnierung ab Werk – bei vielen Modellen direkt als Variante zu wählen – einen stärkeren Schutz bietet als die Imprägnierung nach dem Aufbau. Bei der Werksimprägnierung wird das Imprägnierungsmittel in der Fertigung maschinell aufgetragen. Hierbei werden insbesondere auch Nut und Feder effektiv geschützt.

Die Imprägnierung des Hauses, ob durch unser Montageteam oder ab Werk, stellt eine Erstbehandlung dar. Für einen optimalen Schutz deines Hauses ist nach einer Trocknungszeit ein Zweitanstrich mit einer geeigneten Lasur - bzw. Deckfarbe nötig. Wir empfehlen dir hierfür unsere qualitätsgeprüften PGH-Farben und Lasuren aus unserem Zubehör-Sortiment.

Der GartenHaus Montageservice auf einen Blick: Deine Vorteile

✓ Fachgerechter Aufbau durch unsere Montage-Profis

✓ Ein fester Ansprechpartner für dein Projekt

✓ Bestpreisgarantie und Qualität vom Marktführer

Montageservice der GartenHaus GmbH: So funktioniert‘s:
Nach deiner Bestellung vereinbaren wir mit dir einen Termin, besprechen deinen Auftrag und klären alle deine Fragen.

Wir schicken dir rechtzeitig die Kontaktdaten deines Montagepartners aus deiner Region. Wenn du fachliche Fragen oder Wünsche hast, kannst du dich direkt an einen kompetenten Ansprechpartner wenden. Du stimmst die letzten Fragen mit dem Montage-Team ab und vereinbarst dann einen Termin.

Bitte beachte, dass die Aufbauteams zum Einplanen deines Montagetermins ausreichend Vorlaufszeit benötigen. Damit der Aufbau zeitnah nach der Lieferung erfolgen kann, empfiehlt es sich, die Buchung des Montageservices mit der Produktbestellung vorzunehmen. Eine spätere Nachbestellung des Montageservices ist nach individueller Absprache und erfolgter Prüfung gegebenenfalls möglich. Auch die Montage von Dachrinne, Fußbodendämmung, optionalem Fußboden, sowie die Imprägnierung sind optional in unserem Zubehör am Produkt hinzubuchbar.

Bitte hab Verständnis, dass aus Sicherheitsgründen nur die über die GartenHaus GmbH bezogenen Originalteile verbaut werden.

Für die Vorbereitung der Baustelle und für die Bestellung von Montageleistungen gibt es wichtige Infos. Diese findest du im Dokument und Link

 

Hinweis zur Buchung des richtigen Montageservices: Grundsätzlich sind am Produkt immer die richtigen Montageservice Artikel hinterlegt. Wenn du eine Montage nachträglich buchst, achte bitte bei der Auswahl auf folgende Merkmale:

·         Walmdach: Mit 4 und mehr Dachflächen (siehe Beispielbilder). Alle anderen Dächer werden als „Standarddach“ betrachtet

·         Fußboden: Viele unserer Produkte werden bereits ab Werk mit einem Fußboden ausgeliefert. Für diese Produkte ist das entsprechende Montageprodukt inkl. Fußboden zu wählen. Wenn der Fußboden nicht im Lieferumfang ist, kannst du ihn einfach als separates Zubehör dazu buchen. Für diese Fußböden ist die Zusatzmontage für Fußböden zu wählen.

·         Mehrraum: Für Gebäude mit mindestens einem, durch eine Wand getrennten Raum oder Schlafboden

·         Quadratmeteranzahl: Bezieht sich auf die Grundfläche + Dachüberhang des zu montierenden Produktes

·         Bauart:

Block bezeichnet Häuser, bei denen die Bohlen ineinandergreifend ausgeführt sind (siehe folgendes Bild)

Schraubsystem bezieht sich auf Produkte, die in Elementen oder einzelnen Bohlen ausgeführt sind und im Rahmen verschraubt werden müssen. (siehe folgendes Bild)

GartenHaus Montageservice: Fachgerechte Montage vom Profi zum Bestpreis!

Wähle bequem aus unseren Montage-Sets das für dich passende Gesamtpaket.

Option 1  –  Basic Montage – Haus:

In diesem Set sind enthalten:

·         Der Aufbau des Produktes mit dem kompletten Aufbau ab Oberkante Fundament, inklusive allen im Bausatz enthaltenen Zubehörteilen. Tragewege zum Aufbauort bis 15 m sind im Preis inklusive.

·         Wenn du dich für das Sparset "Montagezubehör und Befestigung" entscheidest, ist auch die Montage dieses Sets inklusive. Wir empfehlen dieses dringend zum sicheren Aufbau. Es schützt dein Produkt effektiv gegen Feuchtigkeit und starken Wind.

Wenn du weiteres Zubehör montieren willst, kannst du das als Zusatzmontage dazu buchen. Die findest du direkt bei deinem Wunschprodukt..

Option 2  – Premium Montage  – Haus und Dacheindeckung:

In diesem Set sind enthalten:

·         Alle Leistungen aus Montage Option 1

·         Zusätzlich enthalten ist das fachgerechte Verlegen von Dachpappe und Dachschindeln, KSK oder EPDM-Folie. Das Material ist nicht im Lieferumfang. Bestelle hierfür eines der vorgeschlagenen Dacheindeckungs-Sets bzw. das Wunschmaterial in der vorgegebenen Menge. Bitte achte auf die richtige Anzahl/Größe der Dachbahn/Folie und Dachabschluss-Profile bzw. -Blenden. Wir beraten dich gern zu den Möglichkeiten!

·         Ein persönlicher Ansprechpartner begleitet dein Projekt von Beauftragung bis zum Abschluss der Montage.

Wenn du weiteres Zubehör montieren willst, kannst du das als Zusatzmontage dazu buchen. Die findest du direkt bei deinem Wunschprodukt..

Option 3 – Exklusiv Montage – Haus und Dacheindeckung + alle optionalen Zusatzmontagen und Sonderwünsche

Wenn du das volle Programm ohne „Wenn“ und „Aber“ willst, ist diese Option genau das Richtige für dich.

In diesem Set sind enthalten:

·         Alle Leistungen der Montage Optionen 1+2

·         Die Zusatzmontage des passenden Dachrinnensets

·         Die Zusatzmontage des Fußbodens (wenn der Fußboden im Lieferumfang des Bausatzes enthalten ist, ist die Montage bereits in der Basic-Option inbegriffen)

·         Verlegung der Bodendämmung

·         Imprägnierung während des Aufbaus (nur notwendig, wenn das Produkt nicht bereits ab Werk mit einer Imprägnierung versehen wurde)

·         Längere Tragewege zum Aufbauort bis 40 m sind im Preis inklusive

·         Wir gehen auf deine individuellen Sonderwünsche ein und finden passende Lösungen

Bitte beachte, dass das zu verbauende Zubehör als optionales Zubehör bestellt werden muss. Wir bieten unseren Montageservice nur für Original-GartenHaus Zubehör an.

Weitere Hinweise:

Imprägnierung: Fachgerechtes (einmaliges) Auftragen von Imprägnierungsmittel (nach Aufbau) an der Außenseite des Produktes. Das Material ist nicht im Lieferumfang. Bestelle bitte hierfür PGH Holzschutzgrund Imprägnierung aus dem Zubehör in vorgeschlagener Menge oder das passende Farbenset.

Die Imprägnierung schafft – in Verbindung mit einer Holzendbehandlung in Form von Deckfarbe oder Lasur – die Basis für langanhaltenden Schutz vor holzabbauenden Pilzen, Bläuebefall, holzzerstörende Insekten/Schimmel. Damit ist der Grundstein für langjährige Freude an deinem Wunschprodukt gelegt! (Die Holzendbehandlung kann erst ca. 24 Stunden nach der Imprägnierung erfolgen und kann daher hier nicht mit angeboten werden.)

Wir weisen an dieser Stelle darauf hin, dass eine Imprägnierung ab Werk – bei vielen Modellen direkt als Variante zu wählen – einen stärkeren Schutz bietet als die Imprägnierung nach dem Aufbau. Bei der Werksimprägnierung wird das Imprägnierungsmittel in der Fertigung maschinell aufgetragen. Hierbei werden insbesondere auch Nut und Feder effektiv geschützt.

Die Imprägnierung des Hauses, ob durch unser Montageteam oder ab Werk, stellt eine Erstbehandlung dar. Für einen optimalen Schutz deines Hauses ist nach einer Trocknungszeit ein Zweitanstrich mit einer geeigneten Lasur - bzw. Deckfarbe nötig. Wir empfehlen dir hierfür unsere qualitätsgeprüften PGH-Farben und Lasuren aus unserem Zubehör-Sortiment.

Der GartenHaus Montageservice auf einen Blick: Deine Vorteile

✓ Fachgerechter Aufbau durch unsere Montage-Profis

✓ Ein fester Ansprechpartner für dein Projekt

✓ Bestpreisgarantie und Qualität vom Marktführer

Montageservice der GartenHaus GmbH: So funktioniert‘s:
Nach deiner Bestellung vereinbaren wir mit dir einen Termin, besprechen deinen Auftrag und klären alle deine Fragen.

Wir schicken dir rechtzeitig die Kontaktdaten deines Montagepartners aus deiner Region. Wenn du fachliche Fragen oder Wünsche hast, kannst du dich direkt an einen kompetenten Ansprechpartner wenden. Du stimmst die letzten Fragen mit dem Montage-Team ab und vereinbarst dann einen Termin.

Bitte beachte, dass die Aufbauteams zum Einplanen deines Montagetermins ausreichend Vorlaufszeit benötigen. Damit der Aufbau zeitnah nach der Lieferung erfolgen kann, empfiehlt es sich, die Buchung des Montageservices mit der Produktbestellung vorzunehmen. Eine spätere Nachbestellung des Montageservices ist nach individueller Absprache und erfolgter Prüfung gegebenenfalls möglich. Auch die Montage von Dachrinne, Fußbodendämmung, optionalem Fußboden, sowie die Imprägnierung sind optional in unserem Zubehör am Produkt hinzubuchbar.

Bitte hab Verständnis, dass aus Sicherheitsgründen nur die über die GartenHaus GmbH bezogenen Originalteile verbaut werden.

Für die Vorbereitung der Baustelle und für die Bestellung von Montageleistungen gibt es wichtige Infos. Diese findest du im Dokument und Link

 

Hinweis zur Buchung des richtigen Montageservices: Grundsätzlich sind am Produkt immer die richtigen Montageservice Artikel hinterlegt. Wenn du eine Montage nachträglich buchst, achte bitte bei der Auswahl auf folgende Merkmale:

·         Walmdach: Mit 4 und mehr Dachflächen (siehe Beispielbilder). Alle anderen Dächer werden als „Standarddach“ betrachtet

·         Fußboden: Viele unserer Produkte werden bereits ab Werk mit einem Fußboden ausgeliefert. Für diese Produkte ist das entsprechende Montageprodukt inkl. Fußboden zu wählen. Wenn der Fußboden nicht im Lieferumfang ist, kannst du ihn einfach als separates Zubehör dazu buchen. Für diese Fußböden ist die Zusatzmontage für Fußböden zu wählen.

·         Mehrraum: Für Gebäude mit mindestens einem, durch eine Wand getrennten Raum oder Schlafboden

·         Quadratmeteranzahl: Bezieht sich auf die Grundfläche + Dachüberhang des zu montierenden Produktes

·         Bauart:

Block bezeichnet Häuser, bei denen die Bohlen ineinandergreifend ausgeführt sind (siehe folgendes Bild)

Schraubsystem bezieht sich auf Produkte, die in Elementen oder einzelnen Bohlen ausgeführt sind und im Rahmen verschraubt werden müssen. (siehe folgendes Bild)

Montage Dachrinne - 1 Dachseite

Mehr Details anzeigen

Montage Dachrinne - 1 Dachseite

Du hast dich zum Schutz und für die Langlebigkeit deines Produkts für ein passendes Dachentwässerungssystem entschieden.

Dann buch die professionelle Montage vom Fachmann gleich mit hinzu.. (Bei diesem Artikel handelt es sich um eine Zusatzmontage, die nur in Verbindung mit einem Montageauftrag für eines unserer Hauptprodukte gebucht werden kann)

Was ist in diesem Montageprodukt enthalten:

-          Fachgerechte Platzierung, Ausrichtung und Montage unserer Dachrinnen- bzw. Fallrohrsets

-          Montage der zusätzlich erhältlichen Rinneneinhänge (nur bei Dachrinnensets notwendig - optionales Zubehör)

Wählen die für dein Produkt passende Variante. Bei Dachrinnensets ist die Anzahl der zu entwässernden Dachseiten (1, 2 oder 4) ausschlaggebend, bei den Fallrohrsets die Anzahl der empfohlenen und bestellten Sets.

Achtung: Die Dachrinne bzw. das Fallrohr ist nicht enthalten. Bestelle hierzu eine der empfohlenen Dachrinnen bzw. Fallrohre aus unserem Zubehör. Wir empfehlen für unsere Dachrinnensets zusätzlich die Rinneneinhänge zu bestellen. Ein Rinneneinhang ist der fachgerechte Abschluss an der Dachtraufe. Er ist das Übergangsblech von der Dachfläche zur Dachrinne und sein Einsatz sorgt für kontrollierten Wassereinlauf in die Dachrinne. Die Montage der Rinneneinhänge ist im Montagepreis der Dachrinne enthalten.

Der GartenHaus Montageservice auf einen Blick: Deine Vorteile

✓ Fachgerechter Aufbau durch unsere Montage-Profis

✓ Ein fester Ansprechpartner für dein Projekt

✓ Bestpreisgarantie und Qualität vom Marktführer

Montageservice der GartenHaus GmbH: So funktioniert‘s:
Nach deiner Bestellung vereinbaren wir mit dir einen Termin, besprechen deinen Auftrag und klären alle deine Fragen.

Wir schicken dir rechtzeitig die Kontaktdaten deines Montagepartners aus deiner Region. Wenn du fachliche Fragen oder Wünsche hast, kannst du dich direkt an einen kompetenten Ansprechpartner wenden. Du stimmst die letzten Fragen mit dem Montage-Team ab und vereinbarst dann einen Termin.

Bitte beachte, dass die Aufbauteams zum Einplanen deines Montagetermins ausreichend Vorlaufszeit benötigen. Damit der Aufbau zeitnah nach der Lieferung erfolgen kann, empfiehlt es sich, die Buchung des Montageservices mit der Produktbestellung vorzunehmen. Eine spätere Nachbestellung des Montageservices ist nach individueller Absprache und erfolgter Prüfung gegebenenfalls möglich.

Bitte hab Verständnis, dass aus Sicherheitsgründen nur die über die GartenHaus GmbH bezogenen Originalteile verbaut werden.

Für die Vorbereitung der Baustelle und für die Bestellung von Montageleistungen gibt es wichtige Infos. Diese findest du im Dokument und Link

CHF 309,00

Montage Fußboden für 3 Sets

Mehr Details anzeigen

Montage Fußboden für 3 Sets

Gerade der Fußboden, die Basis deines Produktes, ist im Laufe der Zeit enormen Kräften und Belastungen ausgesetzt. Umso wichtiger ist die professionelle Montage vom Fachmann.
Überlass nichts dem Zufall und buch den Artikel einfach zur Hausmontage dazu. (Bei diesem Artikel handelt es sich um eine Zusatzmontage, die nur in Verbindung mit einem Montageauftrag für eines unserer Hauptprodukte gebucht werden kann)

Was ist in diesem Montageprodukt enthalten:

-          Aufbau und Zuschnitt des Fundamentrahmens

-          Montage der Fußbodenbretter und der Fußbodenleisten

Wählen die für dein Produkt passende Variante. Entscheidend ist hierfür die Anzahl der für dein Haus bestellten und notwendigen Fußbodensets (ein Set reicht für je 3m² Fußboden).


Achtung:Wenn der Fußboden schon im Lieferumfang des von dir bestellten Hauses enthalten ist, ist die Montage im Montagepreis für dein Haus mit drin. Bitte wähle diese Montage nur, wenn du den optionalen Fußboden dazu bestellst. Der Fußboden und das Montagematerial ist nicht in diesem Montageprodukt inkludiert und muss zusätzlich bestellt werden.

Der GartenHaus Montageservice auf einen Blick: Deine Vorteile

✓ Fachgerechter Aufbau durch unsere Montage-Profis

✓ Ein fester Ansprechpartner für dein Projekt

✓ Bestpreisgarantie und Qualität vom Marktführer

Montageservice der GartenHaus GmbH: So funktioniert‘s:
Nach deiner Bestellung vereinbaren wir mit dir einen Termin, besprechen deinen Auftrag und klären alle deine Fragen.

Wir schicken dir rechtzeitig die Kontaktdaten deines Montagepartners aus deiner Region. Wenn du fachliche Fragen oder Wünsche hast, kannst du dich direkt an einen kompetenten Ansprechpartner wenden. Du stimmst die letzten Fragen mit dem Montage-Team ab und vereinbarst dann einen Termin.

Bitte beachte, dass die Aufbauteams zum Einplanen deines Montagetermins ausreichend Vorlaufszeit benötigen. Damit der Aufbau zeitnah nach der Lieferung erfolgen kann, empfiehlt es sich, die Buchung des Montageservices mit der Produktbestellung vorzunehmen. Eine spätere Nachbestellung des Montageservices ist nach individueller Absprache und erfolgter Prüfung gegebenenfalls möglich.

Bitte hab Verständnis, dass aus Sicherheitsgründen nur die über die GartenHaus GmbH bezogenen Originalteile verbaut werden.

Für die Vorbereitung der Baustelle und für die Bestellung von Montageleistungen gibt es wichtige Infos. Diese findest du im Dokument und Link

CHF 189,00

Montage Boden-Dämmung bis 10m²

Mehr Details anzeigen

Montage Boden-Dämmung bis 10m²

Eine fachgerechte Dämmung des Fußbodens ist eine wertvolle Investition und gerade zur kalten Jahreszeit ist eine gute Isolierung empfehlenswert. Freu Dich auf eine warme und gemütliche Residenz in Deinem Garten und buche diesen Artikel ganz einfach zur Hausmontage dazu.

Was ist in diesem Montageprodukt enthalten:

-          Individueller Zuschnitt des Dämmmaterials

-          Befestigung der Dämmplatten am Fundamentrahmen

-          Luftdichtes Abkleben der Platten auf dem Rahmen zur optimalen Isolierwirkung

Wähle die Grundfläche, die Du isolieren willst, passend zum Produkt aus (bis 10m², bis 15m², usw.). Entscheidend ist die Grundfläche des zu isolierenden Gebäudes.


Achtung: Das Material zur Bodendämmung ist nicht enthalten. Bestelle hierzu ein empfohlenes Dämmset aus unserem Zubehör. Bei mehrstöckigen Häusern wird nur der Boden vom Untergeschoss gedämmt.

Der GartenHaus Montageservice auf einen Blick: Deine Vorteile

✓ Fachgerechter Aufbau durch unsere Montage-Profis

✓ Ein fester Ansprechpartner für dein Projekt

✓ Bestpreisgarantie und Qualität vom Marktführer

Montageservice der GartenHaus GmbH: So funktioniert‘s:
Nach deiner Bestellung vereinbaren wir mit dir einen Termin, besprechen deinen Auftrag und klären alle deine Fragen.

Wir schicken dir rechtzeitig die Kontaktdaten deines Montagepartners aus deiner Region. Wenn du fachliche Fragen oder Wünsche hast, kannst du dich direkt an einen kompetenten Ansprechpartner wenden. Du stimmst die letzten Fragen mit dem Montage-Team ab und vereinbarst dann einen Termin.

Bitte beachte, dass die Aufbauteams zum Einplanen deines Montagetermins ausreichend Vorlaufszeit benötigen. Damit der Aufbau zeitnah nach der Lieferung erfolgen kann, empfiehlt es sich, die Buchung des Montageservices mit der Produktbestellung vorzunehmen. Eine spätere Nachbestellung des Montageservices ist nach individueller Absprache und erfolgter Prüfung gegebenenfalls möglich.

Bitte hab Verständnis, dass aus Sicherheitsgründen nur die über die GartenHaus GmbH bezogenen Originalteile verbaut werden.

Für die Vorbereitung der Baustelle und für die Bestellung von Montageleistungen gibt es wichtige Infos. Diese findest du im Dokument und Link

CHF 219,00

Komfort Garantie

Mehr Details anzeigen

Komfort Garantie

Welche Produkte sind durch die Gartenhaus.com Garantie abgedeckt?

Unsere Komfort Garantie gilt ausschließlich für privat genutzte Produkte. Dazu zählen: 

  • Garten- & Gerätehäuser – dein Rückzugsort oder einfache Lösung zur Aufbewahrung
  • Saunen – für wohltuende Entspannung und Wellness im eigenen Zuhause
  • Kinderspielgeräte – Spiel und Spaß für Groß und Klein
  • Holzpavillons - für dein persönliches Paradies im Garten
  • Carports – zuverlässiger Schutz für dein Fahrzeug vor Regen, Schnee und Sonne
  • Garagen – sicherer Stellplatz mit zusätzlichem Stauraum für deine Bedürfnisse

Mit unserer Garantie kannst du dich auf die Qualität deines Produkts verlassen. Sollte doch einmal etwas nicht passen, sind wir schnell und unkompliziert für dich da.

Was beinhaltet die Komfort Garantie?

Dank unserer Komfort Garantie musst du dir keine Sorgen machen. Geht etwas kaputt, bekommst du von uns die passenden Ersatzteile für folgende Bereiche: 

  • Türen (Glasschäden bis zu CHF 200 )
  • Fenster (Glasschäden bis zu CHF 200)
  • Dachrinne – für einen sicheren Wasserablauf
  • Türschloss – für zuverlässigen Schutz
  • Beschläge – falls kleine, aber wichtige Teile ersetzt werden müssen
  • Dacheindeckung (Dachpappe, Dachschindeln, KSK) – für optimalen Schutz vor Wind und Wetter

Wichtig:

Die Komfort-Garantie umfasst ausschließlich die Lieferung der Ersatzteile. Der Einbau liegt in deiner Hand. Für eine professionelle Montage wähle die Premium-Garantie. 

Mit der Komfort Garantie bist du gut abgesichert und kannst dein Gartenhaus.com-Produkt unbesorgt genießen.

Garantiebedingungen 

Alle Details und mehr Infos zur Komfort Garantie

Noch Fragen? Unser Kundenservice hilft dir gerne weiter!

CHF 69,00

Zubehör für dein Produkt

PGH Hartwachsöl 0,75 L

Mehr Details anzeigen

PGH Hartwachsöl 0,75 L

Hochwertiges Hartwachsöl für Innenbereich

Unser Hartwachsöl bietet eine hochwertige Lösung für die Grundierung und Behandlung verschiedener saugfähiger Untergründe im Innenbereich. Mit einer seidenmatten, strapazierfähigen Oberfläche, die natürliche Strukturen belebt und Tönungen vertieft, bietet es beste Ergebnisse für Holz-, Kork- und Steinböden sowie andere Oberflächen. Einfach in der Anwendung und getestet gemäß höchsten Standards, ist es die ideale Wahl für professionelle Ergebnisse.

Artikeldetails zum Hartwachsöl:

  • Anwendung: Grundierung und Behandlung saugfähiger Untergründe im Innenbereich.

  • Eigenschaften: Seidenmatte Oberfläche, vertieft die Tönung, wasserabweisend.
  • Geprüft auf Chemikalienbeständigkeit und Migration.
  • Inhaltsstoffe: Leinöl, Holzöl, Ricinöl, Naturharzester, weitere.
  • VOC-Gehalt: Max. 440 g/l (EU-Grenzwert: max. 500 g/l).
  • Verarbeitung: Vor Gebrauch aufschütteln, dünn auftragen, polieren.
  • Trocknungszeit: Ca. 6-12 Std., überstreichbar nach 16-24 Std.
  • Verbrauch: 30-50 g/m²; Ergiebigkeit ca. 20 m²/l.
  • Lagerung: Kühl, trocken, ungeöffnet min. 24 Monate haltbar.
  • Entsorgung: Gemäß örtlichen Vorschriften.
  • Hinweise: Farbangaben unverbindlich, Probeanstrich empfohlen.

 

 

CHF 79,00

Wetterschutz Farbset S - bis 34 m² - Schwedenrot - Wetterschutzfarbe

Mehr Details anzeigen

Wetterschutz Farbset S - bis 34 m² - Schwedenrot - Wetterschutzfarbe

Unser Wetterschutzfarbset S - bis 34 m² schützt Holz im Außenbereich zuverlässig vor Sonne, Regen, Kälte und UV-Strahlung. Der elastische Anstrichfilm sorgt für langlebigen Schutz und eine gleichmäßige, farbige Oberfläche.

Die umweltfreundliche, seidenglänzende rote Holzfarbe ist besonders haltbar, platzt nicht ab und eignet sich ideal für sägeraues Holz und alle Holzkonstruktionen im Außenbereich.

  • Gute Deckkraft
  • Wetter- und UV-beständig
  • Wasserdampfdurchlässig
  • Elastischer Anstrichfilm
  • Filmschutz gegen Pilzbefall
  • Speichel- und schweißecht (DIN 53 160)

Bevor du deinem Holz mit der Wetterschutzfarbe den finalen Look gibst, braucht es die richtige Vorbereitung. Genau dafür ist unser offenporiger Holzgrund gemacht.

Er zieht tief ins Holz ein, bleibt dabei atmungsaktiv und sorgt für die ideale Haftung deines Folgeanstrichs. So holst du das Beste aus deiner Holzlasur oder deinem Lack heraus – optisch und technisch.

Warum du grundieren solltest:

  • Optimale Haftung für Lasuren & Lacke
  • Offenporig & tiefenwirksam
  • Für den Außenbereich geeignet
  • Mit Filmschutz gegen Pilzbefall
  • Wetterfest nach vollständiger Trocknung

Lieferumfang:

  • 1 x 2,5 l Holzgrund
  • 2 x 2,5 l Wetterschutzfarbe in Schwedenrot

CHF 169,00

Unser Wetterschutzfarbset S - bis 34 m² schützt Holz im Außenbereich zuverlässig vor Sonne, Regen, Kälte und UV-Strahlung. Der elastische Anstrichfilm sorgt für langlebigen Schutz und eine gleichmäßige, farbige Oberfläche.

Die umweltfreundliche, seidenglänzende rote Holzfarbe ist besonders haltbar, platzt nicht ab und eignet sich ideal für sägeraues Holz und alle Holzkonstruktionen im Außenbereich.

  • Gute Deckkraft
  • Wetter- und UV-beständig
  • Wasserdampfdurchlässig
  • Elastischer Anstrichfilm
  • Filmschutz gegen Pilzbefall
  • Speichel- und schweißecht (DIN 53 160)

Bevor du deinem Holz mit der Wetterschutzfarbe den finalen Look gibst, braucht es die richtige Vorbereitung. Genau dafür ist unser offenporiger Holzgrund gemacht.

Er zieht tief ins Holz ein, bleibt dabei atmungsaktiv und sorgt für die ideale Haftung deines Folgeanstrichs. So holst du das Beste aus deiner Holzlasur oder deinem Lack heraus – optisch und technisch.

Warum du grundieren solltest:

  • Optimale Haftung für Lasuren & Lacke
  • Offenporig & tiefenwirksam
  • Für den Außenbereich geeignet
  • Mit Filmschutz gegen Pilzbefall
  • Wetterfest nach vollständiger Trocknung

Lieferumfang:

  • 1 x 2,5 l Holzgrund
  • 2 x 2,5 l Wetterschutzfarbe in Schwedenrot

Unser Wetterschutzfarbset S - bis 34 m² schützt Holz im Außenbereich zuverlässig vor Sonne, Regen, Kälte und UV-Strahlung. Der elastische Anstrichfilm sorgt für langlebigen Schutz und eine gleichmäßige, farbige Oberfläche.

Die umweltfreundliche, seidenglänzende anthrazite Holzfarbe ist besonders haltbar, platzt nicht ab und eignet sich ideal für sägeraues Holz und alle Holzkonstruktionen im Außenbereich.

  • Gute Deckkraft
  • Wetter- und UV-beständig
  • Wasserdampfdurchlässig
  • Elastischer Anstrichfilm
  • Filmschutz gegen Pilzbefall
  • Speichel- und schweißecht (DIN 53 160)

Bevor du deinem Holz mit der Wetterschutzfarbe den finalen Look gibst, braucht es die richtige Vorbereitung. Genau dafür ist unser offenporiger Holzgrund gemacht.

Er zieht tief ins Holz ein, bleibt dabei atmungsaktiv und sorgt für die ideale Haftung deines Folgeanstrichs. So holst du das Beste aus deiner Holzlasur oder deinem Lack heraus – optisch und technisch.

Warum du grundieren solltest:

  • Optimale Haftung für Lasuren & Lacke
  • Offenporig & tiefenwirksam
  • Für den Außenbereich geeignet
  • Mit Filmschutz gegen Pilzbefall
  • Wetterfest nach vollständiger Trocknung

Lieferumfang:

  • 1 x 2,5 l Holzgrund
  • 2 x 2,5 l Wetterschutzfarbe in Anthrazitgrau

Unser Wetterschutzfarbset S - bis 34 m² schützt Holz im Außenbereich zuverlässig vor Sonne, Regen, Kälte und UV-Strahlung. Der elastische Anstrichfilm sorgt für langlebigen Schutz und eine gleichmäßige, farbige Oberfläche.

Die umweltfreundliche, seidenglänzende weiße Holzfarbe ist besonders haltbar, platzt nicht ab und eignet sich ideal für sägeraues Holz und alle Holzkonstruktionen im Außenbereich.

  • Gute Deckkraft
  • Wetter- und UV-beständig
  • Wasserdampfdurchlässig
  • Elastischer Anstrichfilm
  • Filmschutz gegen Pilzbefall
  • Speichel- und schweißecht (DIN 53 160)

Bevor du deinem Holz mit der Wetterschutzfarbe den finalen Look gibst, braucht es die richtige Vorbereitung. Genau dafür ist unser offenporiger Holzgrund gemacht.

Er zieht tief ins Holz ein, bleibt dabei atmungsaktiv und sorgt für die ideale Haftung deines Folgeanstrichs. So holst du das Beste aus deiner Holzlasur oder deinem Lack heraus – optisch und technisch.

Warum du grundieren solltest:

  • Optimale Haftung für Lasuren & Lacke
  • Offenporig & tiefenwirksam
  • Für den Außenbereich geeignet
  • Mit Filmschutz gegen Pilzbefall
  • Wetterfest nach vollständiger Trocknung

Lieferumfang:

  • 1 x 2,5 l Holzgrund
  • 2 x 2,5 l Wetterschutzfarbe in Weiß

Unser Wetterschutzfarbset S - bis 34 m² schützt Holz im Außenbereich zuverlässig vor Sonne, Regen, Kälte und UV-Strahlung. Der elastische Anstrichfilm sorgt für langlebigen Schutz und eine gleichmäßige, farbige Oberfläche.

Die umweltfreundliche, seidenglänzende schwarze Holzfarbe ist besonders haltbar, platzt nicht ab und eignet sich ideal für sägeraues Holz und alle Holzkonstruktionen im Außenbereich.

  • Gute Deckkraft
  • Wetter- und UV-beständig
  • Wasserdampfdurchlässig
  • Elastischer Anstrichfilm
  • Filmschutz gegen Pilzbefall
  • Speichel- und schweißecht (DIN 53 160)

Bevor du deinem Holz mit der Wetterschutzfarbe den finalen Look gibst, braucht es die richtige Vorbereitung. Genau dafür ist unser offenporiger Holzgrund gemacht.

Er zieht tief ins Holz ein, bleibt dabei atmungsaktiv und sorgt für die ideale Haftung deines Folgeanstrichs. So holst du das Beste aus deiner Holzlasur oder deinem Lack heraus – optisch und technisch.

Warum du grundieren solltest:

  • Optimale Haftung für Lasuren & Lacke
  • Offenporig & tiefenwirksam
  • Für den Außenbereich geeignet
  • Mit Filmschutz gegen Pilzbefall
  • Wetterfest nach vollständiger Trocknung

Lieferumfang:

  • 1 x 2,5 l Holzgrund
  • 2 x 2,5 l Wetterschutzfarbe in Schwarz

Unser Wetterschutzfarbset S - bis 34 m² schützt Holz im Außenbereich zuverlässig vor Sonne, Regen, Kälte und UV-Strahlung. Der elastische Anstrichfilm sorgt für langlebigen Schutz und eine gleichmäßige, farbige Oberfläche.

Die umweltfreundliche, seidenglänzende rote Holzfarbe ist besonders haltbar, platzt nicht ab und eignet sich ideal für sägeraues Holz und alle Holzkonstruktionen im Außenbereich.

  • Gute Deckkraft
  • Wetter- und UV-beständig
  • Wasserdampfdurchlässig
  • Elastischer Anstrichfilm
  • Filmschutz gegen Pilzbefall
  • Speichel- und schweißecht (DIN 53 160)

Bevor du deinem Holz mit der Wetterschutzfarbe den finalen Look gibst, braucht es die richtige Vorbereitung. Genau dafür ist unser offenporiger Holzgrund gemacht.

Er zieht tief ins Holz ein, bleibt dabei atmungsaktiv und sorgt für die ideale Haftung deines Folgeanstrichs. So holst du das Beste aus deiner Holzlasur oder deinem Lack heraus – optisch und technisch.

Warum du grundieren solltest:

  • Optimale Haftung für Lasuren & Lacke
  • Offenporig & tiefenwirksam
  • Für den Außenbereich geeignet
  • Mit Filmschutz gegen Pilzbefall
  • Wetterfest nach vollständiger Trocknung

Lieferumfang:

  • 1 x 2,5 l Holzgrund
  • 2 x 2,5 l Wetterschutzfarbe in Schwedenrot

Unser Wetterschutzfarbset S - bis 34 m² schützt Holz im Außenbereich zuverlässig vor Sonne, Regen, Kälte und UV-Strahlung. Der elastische Anstrichfilm sorgt für langlebigen Schutz und eine gleichmäßige, farbige Oberfläche.

Die umweltfreundliche, seidenglänzende anthrazite Holzfarbe ist besonders haltbar, platzt nicht ab und eignet sich ideal für sägeraues Holz und alle Holzkonstruktionen im Außenbereich.

  • Gute Deckkraft
  • Wetter- und UV-beständig
  • Wasserdampfdurchlässig
  • Elastischer Anstrichfilm
  • Filmschutz gegen Pilzbefall
  • Speichel- und schweißecht (DIN 53 160)

Bevor du deinem Holz mit der Wetterschutzfarbe den finalen Look gibst, braucht es die richtige Vorbereitung. Genau dafür ist unser offenporiger Holzgrund gemacht.

Er zieht tief ins Holz ein, bleibt dabei atmungsaktiv und sorgt für die ideale Haftung deines Folgeanstrichs. So holst du das Beste aus deiner Holzlasur oder deinem Lack heraus – optisch und technisch.

Warum du grundieren solltest:

  • Optimale Haftung für Lasuren & Lacke
  • Offenporig & tiefenwirksam
  • Für den Außenbereich geeignet
  • Mit Filmschutz gegen Pilzbefall
  • Wetterfest nach vollständiger Trocknung

Lieferumfang:

  • 1 x 2,5 l Holzgrund
  • 2 x 2,5 l Wetterschutzfarbe in Anthrazitgrau

Unser Wetterschutzfarbset S - bis 34 m² schützt Holz im Außenbereich zuverlässig vor Sonne, Regen, Kälte und UV-Strahlung. Der elastische Anstrichfilm sorgt für langlebigen Schutz und eine gleichmäßige, farbige Oberfläche.

Die umweltfreundliche, seidenglänzende weiße Holzfarbe ist besonders haltbar, platzt nicht ab und eignet sich ideal für sägeraues Holz und alle Holzkonstruktionen im Außenbereich.

  • Gute Deckkraft
  • Wetter- und UV-beständig
  • Wasserdampfdurchlässig
  • Elastischer Anstrichfilm
  • Filmschutz gegen Pilzbefall
  • Speichel- und schweißecht (DIN 53 160)

Bevor du deinem Holz mit der Wetterschutzfarbe den finalen Look gibst, braucht es die richtige Vorbereitung. Genau dafür ist unser offenporiger Holzgrund gemacht.

Er zieht tief ins Holz ein, bleibt dabei atmungsaktiv und sorgt für die ideale Haftung deines Folgeanstrichs. So holst du das Beste aus deiner Holzlasur oder deinem Lack heraus – optisch und technisch.

Warum du grundieren solltest:

  • Optimale Haftung für Lasuren & Lacke
  • Offenporig & tiefenwirksam
  • Für den Außenbereich geeignet
  • Mit Filmschutz gegen Pilzbefall
  • Wetterfest nach vollständiger Trocknung

Lieferumfang:

  • 1 x 2,5 l Holzgrund
  • 2 x 2,5 l Wetterschutzfarbe in Weiß

Unser Wetterschutzfarbset S - bis 34 m² schützt Holz im Außenbereich zuverlässig vor Sonne, Regen, Kälte und UV-Strahlung. Der elastische Anstrichfilm sorgt für langlebigen Schutz und eine gleichmäßige, farbige Oberfläche.

Die umweltfreundliche, seidenglänzende schwarze Holzfarbe ist besonders haltbar, platzt nicht ab und eignet sich ideal für sägeraues Holz und alle Holzkonstruktionen im Außenbereich.

  • Gute Deckkraft
  • Wetter- und UV-beständig
  • Wasserdampfdurchlässig
  • Elastischer Anstrichfilm
  • Filmschutz gegen Pilzbefall
  • Speichel- und schweißecht (DIN 53 160)

Bevor du deinem Holz mit der Wetterschutzfarbe den finalen Look gibst, braucht es die richtige Vorbereitung. Genau dafür ist unser offenporiger Holzgrund gemacht.

Er zieht tief ins Holz ein, bleibt dabei atmungsaktiv und sorgt für die ideale Haftung deines Folgeanstrichs. So holst du das Beste aus deiner Holzlasur oder deinem Lack heraus – optisch und technisch.

Warum du grundieren solltest:

  • Optimale Haftung für Lasuren & Lacke
  • Offenporig & tiefenwirksam
  • Für den Außenbereich geeignet
  • Mit Filmschutz gegen Pilzbefall
  • Wetterfest nach vollständiger Trocknung

Lieferumfang:

  • 1 x 2,5 l Holzgrund
  • 2 x 2,5 l Wetterschutzfarbe in Schwarz

Holzlasur Set - Außen S - bis 34 m² - Weiß - Lasur

Mehr Details anzeigen

Holzlasur Set - Außen S - bis 34 m² - Weiß - Lasur

Unser transparentes Holzlasur Set - Außen S - bis 34 m² für den Außenbereich ist ideal zum Schutz und zur dekorativen Beschichtung von Holz. Die offenporige Lasur ist wetter- und wasserfest und erhält die natürliche Holzstruktur.

Mit Filmschutz gegen Pilz- und Bläuebefall eignet sich die Lasur ideal für Fenster, Türen, Zäune, Pergolen, Dachüberstände und Holzverkleidungen.

Bevor du deinem Holz mit der Holzlasur den finalen Look gibst, braucht es die richtige Vorbereitung. Genau dafür ist unser offenporiger Holzgrund gemacht.

Er zieht tief ins Holz ein, bleibt dabei atmungsaktiv und sorgt für die ideale Haftung deines Folgeanstrichs. So holst du das Beste aus deiner Holzlasur oder deinem Lack heraus – optisch und technisch.

Warum du grundieren solltest:

  • Optimale Haftung für Lasuren & Lacke
  • Offenporig & tiefenwirksam
  • Für den Außenbereich geeignet
  • Mit Filmschutz gegen Pilzbefall
  • Wetterfest nach vollständiger Trocknung

Lieferumfang:

  • 1 x 2,5 l Holzgrund
  • 2 x 2,5 l Holzlasur in transparentem Weiß

CHF 169,00

Unser transparentes Holzlasur Set - Außen S - bis 34 m² für den Außenbereich ist ideal zum Schutz und zur dekorativen Beschichtung von Holz. Die offenporige Lasur ist wetter- und wasserfest und erhält die natürliche Holzstruktur.

Mit Filmschutz gegen Pilz- und Bläuebefall eignet sich die Lasur ideal für Fenster, Türen, Zäune, Pergolen, Dachüberstände und Holzverkleidungen.

Bevor du deinem Holz mit der Holzlasur den finalen Look gibst, braucht es die richtige Vorbereitung. Genau dafür ist unser offenporiger Holzgrund gemacht.

Er zieht tief ins Holz ein, bleibt dabei atmungsaktiv und sorgt für die ideale Haftung deines Folgeanstrichs. So holst du das Beste aus deiner Holzlasur oder deinem Lack heraus – optisch und technisch.

Warum du grundieren solltest:

  • Optimale Haftung für Lasuren & Lacke
  • Offenporig & tiefenwirksam
  • Für den Außenbereich geeignet
  • Mit Filmschutz gegen Pilzbefall
  • Wetterfest nach vollständiger Trocknung

Lieferumfang:

  • 1 x 2,5 l Holzgrund
  • 2 x 2,5 l Holzlasur in transparentem Weiß

Unser transparentes Holzlasur Set - Außen S - bis 34 m² für den Außenbereich ist ideal zum Schutz und zur dekorativen Beschichtung von Holz. Die offenporige Lasur ist wetter- und wasserfest und erhält die natürliche Holzstruktur.

Mit Filmschutz gegen Pilz- und Bläuebefall eignet sich die Lasur ideal für Fenster, Türen, Zäune, Pergolen, Dachüberstände und Holzverkleidungen.

Bevor du deinem Holz mit der Holzlasur den finalen Look gibst, braucht es die richtige Vorbereitung. Genau dafür ist unser offenporiger Holzgrund gemacht.

Er zieht tief ins Holz ein, bleibt dabei atmungsaktiv und sorgt für die ideale Haftung deines Folgeanstrichs. So holst du das Beste aus deiner Holzlasur oder deinem Lack heraus – optisch und technisch.

Warum du grundieren solltest:

  • Optimale Haftung für Lasuren & Lacke
  • Offenporig & tiefenwirksam
  • Für den Außenbereich geeignet
  • Mit Filmschutz gegen Pilzbefall
  • Wetterfest nach vollständiger Trocknung

Lieferumfang:

  • 1 x 2,5 l Holzgrund
  • 2 x 2,5 l Holzlasur in transparentem Pinienton

Unser transparentes Holzlasur Set - Außen S - bis 34 m² für den Außenbereich ist ideal zum Schutz und zur dekorativen Beschichtung von Holz. Die offenporige Lasur ist wetter- und wasserfest und erhält die natürliche Holzstruktur.

Mit Filmschutz gegen Pilz- und Bläuebefall eignet sich die Lasur ideal für Fenster, Türen, Zäune, Pergolen, Dachüberstände und Holzverkleidungen.

Bevor du deinem Holz mit der Holzlasur den finalen Look gibst, braucht es die richtige Vorbereitung. Genau dafür ist unser offenporiger Holzgrund gemacht.

Er zieht tief ins Holz ein, bleibt dabei atmungsaktiv und sorgt für die ideale Haftung deines Folgeanstrichs. So holst du das Beste aus deiner Holzlasur oder deinem Lack heraus – optisch und technisch.

Warum du grundieren solltest:

  • Optimale Haftung für Lasuren & Lacke
  • Offenporig & tiefenwirksam
  • Für den Außenbereich geeignet
  • Mit Filmschutz gegen Pilzbefall
  • Wetterfest nach vollständiger Trocknung

Lieferumfang:

  • 1 x 2,5 l Holzgrund
  • 2 x 2,5 l Holzlasur in transparentem Hellgrau

Unser transparentes Holzlasur Set - Außen S - bis 34 m² für den Außenbereich ist ideal zum Schutz und zur dekorativen Beschichtung von Holz. Die offenporige Lasur ist wetter- und wasserfest und erhält die natürliche Holzstruktur.

Mit Filmschutz gegen Pilz- und Bläuebefall eignet sich die Lasur ideal für Fenster, Türen, Zäune, Pergolen, Dachüberstände und Holzverkleidungen.

Bevor du deinem Holz mit der Holzlasur den finalen Look gibst, braucht es die richtige Vorbereitung. Genau dafür ist unser offenporiger Holzgrund gemacht.

Er zieht tief ins Holz ein, bleibt dabei atmungsaktiv und sorgt für die ideale Haftung deines Folgeanstrichs. So holst du das Beste aus deiner Holzlasur oder deinem Lack heraus – optisch und technisch.

Warum du grundieren solltest:

  • Optimale Haftung für Lasuren & Lacke
  • Offenporig & tiefenwirksam
  • Für den Außenbereich geeignet
  • Mit Filmschutz gegen Pilzbefall
  • Wetterfest nach vollständiger Trocknung

Lieferumfang:

  • 1 x 2,5 l Holzgrund
  • 2 x 2,5 l Holzlasur in transparentem Anthrazitgrau

Unser transparentes Holzlasur Set - Außen S - bis 34 m² für den Außenbereich ist ideal zum Schutz und zur dekorativen Beschichtung von Holz. Die offenporige Lasur ist wetter- und wasserfest und erhält die natürliche Holzstruktur.

Mit Filmschutz gegen Pilz- und Bläuebefall eignet sich die Lasur ideal für Fenster, Türen, Zäune, Pergolen, Dachüberstände und Holzverkleidungen.

Bevor du deinem Holz mit der Holzlasur den finalen Look gibst, braucht es die richtige Vorbereitung. Genau dafür ist unser offenporiger Holzgrund gemacht.

Er zieht tief ins Holz ein, bleibt dabei atmungsaktiv und sorgt für die ideale Haftung deines Folgeanstrichs. So holst du das Beste aus deiner Holzlasur oder deinem Lack heraus – optisch und technisch.

Warum du grundieren solltest:

  • Optimale Haftung für Lasuren & Lacke
  • Offenporig & tiefenwirksam
  • Für den Außenbereich geeignet
  • Mit Filmschutz gegen Pilzbefall
  • Wetterfest nach vollständiger Trocknung

Lieferumfang:

  • 1 x 2,5 l Holzgrund
  • 2 x 2,5 l Holzlasur in transparentem Weiß

Unser transparentes Holzlasur Set - Außen S - bis 34 m² für den Außenbereich ist ideal zum Schutz und zur dekorativen Beschichtung von Holz. Die offenporige Lasur ist wetter- und wasserfest und erhält die natürliche Holzstruktur.

Mit Filmschutz gegen Pilz- und Bläuebefall eignet sich die Lasur ideal für Fenster, Türen, Zäune, Pergolen, Dachüberstände und Holzverkleidungen.

Bevor du deinem Holz mit der Holzlasur den finalen Look gibst, braucht es die richtige Vorbereitung. Genau dafür ist unser offenporiger Holzgrund gemacht.

Er zieht tief ins Holz ein, bleibt dabei atmungsaktiv und sorgt für die ideale Haftung deines Folgeanstrichs. So holst du das Beste aus deiner Holzlasur oder deinem Lack heraus – optisch und technisch.

Warum du grundieren solltest:

  • Optimale Haftung für Lasuren & Lacke
  • Offenporig & tiefenwirksam
  • Für den Außenbereich geeignet
  • Mit Filmschutz gegen Pilzbefall
  • Wetterfest nach vollständiger Trocknung

Lieferumfang:

  • 1 x 2,5 l Holzgrund
  • 2 x 2,5 l Holzlasur in transparentem Pinienton

Unser transparentes Holzlasur Set - Außen S - bis 34 m² für den Außenbereich ist ideal zum Schutz und zur dekorativen Beschichtung von Holz. Die offenporige Lasur ist wetter- und wasserfest und erhält die natürliche Holzstruktur.

Mit Filmschutz gegen Pilz- und Bläuebefall eignet sich die Lasur ideal für Fenster, Türen, Zäune, Pergolen, Dachüberstände und Holzverkleidungen.

Bevor du deinem Holz mit der Holzlasur den finalen Look gibst, braucht es die richtige Vorbereitung. Genau dafür ist unser offenporiger Holzgrund gemacht.

Er zieht tief ins Holz ein, bleibt dabei atmungsaktiv und sorgt für die ideale Haftung deines Folgeanstrichs. So holst du das Beste aus deiner Holzlasur oder deinem Lack heraus – optisch und technisch.

Warum du grundieren solltest:

  • Optimale Haftung für Lasuren & Lacke
  • Offenporig & tiefenwirksam
  • Für den Außenbereich geeignet
  • Mit Filmschutz gegen Pilzbefall
  • Wetterfest nach vollständiger Trocknung

Lieferumfang:

  • 1 x 2,5 l Holzgrund
  • 2 x 2,5 l Holzlasur in transparentem Hellgrau

Unser transparentes Holzlasur Set - Außen S - bis 34 m² für den Außenbereich ist ideal zum Schutz und zur dekorativen Beschichtung von Holz. Die offenporige Lasur ist wetter- und wasserfest und erhält die natürliche Holzstruktur.

Mit Filmschutz gegen Pilz- und Bläuebefall eignet sich die Lasur ideal für Fenster, Türen, Zäune, Pergolen, Dachüberstände und Holzverkleidungen.

Bevor du deinem Holz mit der Holzlasur den finalen Look gibst, braucht es die richtige Vorbereitung. Genau dafür ist unser offenporiger Holzgrund gemacht.

Er zieht tief ins Holz ein, bleibt dabei atmungsaktiv und sorgt für die ideale Haftung deines Folgeanstrichs. So holst du das Beste aus deiner Holzlasur oder deinem Lack heraus – optisch und technisch.

Warum du grundieren solltest:

  • Optimale Haftung für Lasuren & Lacke
  • Offenporig & tiefenwirksam
  • Für den Außenbereich geeignet
  • Mit Filmschutz gegen Pilzbefall
  • Wetterfest nach vollständiger Trocknung

Lieferumfang:

  • 1 x 2,5 l Holzgrund
  • 2 x 2,5 l Holzlasur in transparentem Anthrazitgrau
Häufige Fragen zu dem Produkt

Brauche ich für das Pultdach Gartenhaus Maria eine Baugenehmigung?

Ein kleines Gartenhaus ist in vielen Kantonen bewilligungsfrei, solange es bestimmte Höhen- und Nutzungsgrenzen einhält. Teilweise ist jedoch eine Meldung bei der Gemeinde nötig. Die Regeln unterscheiden sich dabei von Kanton zu Kanton. Bei Fragen hilft dir unser Beratungs-Team gerne und ausführlichere Infos, wann eine Baugenehmigung erfolderlich ist und welche Ausnahmen gelten, findest du in unserem Ratgeber.
>> Ratgeber Baugenehmigung

Welche Dacheindeckung wähle ich für das Pultdach Gartenhaus Maria?

Für ein Pultdach eignen sich besonders Bitumen-Dachbahnen, selbstklebende EPDM-Folien oder moderne Schindellösungen. Die einseitige Dachneigung sorgt für guten Wasserablauf, weshalb eine saubere, durchgehende Abdichtung wichtig ist. Je nach gewünschter Langlebigkeit solltest du zwischen einer einfachen oder besonders robusten Lösung wählen. Bei Fragen hilft dir unser Beratungs-Team gerne und detailliertere Infos findest du in unserem Ratgeber.
>> Ratgeber: Gartenhaus Dacheindeckung

Welches Fundament ist für das Pultdach Gartenhaus Maria geeignet?

Ein Plattenfundament oder kleines Streifenfundament sorgen bei diesem Gartenhaus in der Regel für den nötigen Halt. In Regionen mit starker Witterung ist zudem ein guter Feuchtigkeitsschutz wichtig. Zudem solltest du auf eine ausreichende Windverankerung achten. Bei Fragen hilft dir unser Beratungs-Team gerne und in unserem Ratgeber findest du weitere passende Fundamentlösungen.
>> Ratgeber: Gartenhaus Fundament

Welche Nutzungsmöglichkeiten bietet das Pultdach Gartenhaus Maria?

In einer Wandstärke von 28-39 mm lassen sich nebst der Lagerung auch kleinere Hobby- oder Nebenräume umsetzen, etwa eine kleine Werkstattecke, ein Velo-Unterstand oder ein Spielbereich für Kinder. Die Konstruktion ist stabiler und bietet etwas mehr Komfort. Für längere Aufenthalte eignet sich dieses Häuschen jedoch nur bedingt, da sie von der Witterung abhängig sind. Bei Fragen hilft dir unser Beratungs-Team gerne und detailliertere Infos findest du in unserem Ratgeber.
>> Ratgeber: Gartenhaus Wandstärke
Baupläne & Dokumente
Pultdach Gartenhaus Maria Verfügbare Downloads: Sicherheitshinweise-Gartenhaus-Alpholz.pdf
Bewertungen

Durchschnittliche Bewertung von 4.8 von 5 Sternen

(8)

Durchschnittliche Bewertung von 4.8 von 5 Sternen

(8 Bewertungen)

Sehr gut. Qualität und Lieferung

Bestellung und Beratung sehr gut. Lieferung sehr gut. Holzqualität gut. Holz mit kleiner unschönen Fehlern. Passgenauigkeit sehr gut. Es war alles da. Nichts hat gefehlt. Tür schließt, maßhaltig, Schloss sehr gut. Aufbauanleitung sehr gut. Für handwerklich geschickte Käufer wird sie fast nicht gebraucht.

Durchschnittliche Bewertung von 5 von 5 Sternen

Schönes Gartenhaus

Das Gartenhaus ist mit etwas Geschick schnell aufgebaut. Die Materialien fühlen sich sehr hochwertig an. Zu dem Preis eine Kaufempfehlung.

Durchschnittliche Bewertung von 5 von 5 Sternen

Schönes Gartenhaus

Das Gartenhaus wurde gut verpackt und pünktlich geliefert. Der Aufbau hat gut geklappt und es passte alles!

Durchschnittliche Bewertung von 5 von 5 Sternen

etwas klein aber gut

Das Haus ist stabil, da wir dickere Wände bestellt. Montage war einfach für meinen Mann.I st was kleiner als gedacht, weil das Außenmaßen sind. Das einzige Hacken war -Türschloss hat schlechte Qualität ,Unsere kleine Tochter war im Haus spielen mehrmals und nur nach 4 Tagen hat es kaputt gemacht. Mein Mann musste einen guten Schloss kaufen.

Durchschnittliche Bewertung von 4 von 5 Sternen

Wunderbares Hütte

Bin sehr zufrieden gerade richtig schöne HÜTTE Allein aufgebaut klappt gut

Durchschnittliche Bewertung von 4.5 von 5 Sternen

Welche Größe hat es vom draußen?

Hallo, hab da mal eine frage, welche größe stimmt nun? Bzw welche größe ist damit genau gemeint. Einmal steht da eine größe von 300cm x 250cm und einmal steht weiter unten 300cm x 275cm Die sockelmase ist ja 280cm x 230cm. Was aber bedeuten die andren beiden Maße?

Durchschnittliche Bewertung von 5 von 5 Sternen

Einfach, schnell und super Qualität!

Von der Lieferung bis zur Fertigstellung - überhaupt kein Problem. Wie ein Wunder hat alles gepasst, alle Details vorhanden. In 5 Stunden stand ein wunderschönes Haus da!

Durchschnittliche Bewertung von 5 von 5 Sternen

Ware mit hoher Qualität.

Ein geräumiges Gartenhaus mit nicht zu hohem Dach. Zu zweit in nur 5 Stunden aufgebaut. Alles hat gepasst! Tolles Produkt, nur zu empfehlen.

Durchschnittliche Bewertung von 5 von 5 Sternen

Produktdetails
Details:
Wandstärke (mm)
28
Materialart
Kiefer | Nordische Fichte
Oberflächenbehandlung
ohne
Grundfarbe
Naturbelassen
Grundfläche
6,4
Gesamtmaß (cm)
300 x 272
Gesamthöhe
228
Rauminhalt
13,2
Seitenverkehrte Montage
Nein
Fußboden
Optionales Zubehör
Bauweise
Blockbohlenbauweise
Dachform
Pultdach
Dachfläche (m²)
8,3
Dachneigung
9
Dacheindeckung
ohne
Innenmaß (cm)
274 x 224
Sockelmaß (cm)
277 x 227
Türmaß (cm)
160 x 185 cm
Fensterausführung
ohne
Verglasung
Echtglas

Kundenbilder

Beliebte Produkte