Plus de détails
                                                        
                                                        
                                                            
                                                            Service de montage GartenHaus : un montage professionnel au meilleur prix !
Choisissez facilement parmi nos kits de montage le package complet qui vous convient.

Option 1 - Montage de base - Maison :
Ce kit comprend :
- Le montage du produit avec la construction complète à partir du bord supérieur des fondations, y compris tous les accessoires compris dans le kit. Les trajets de transport jusqu'au lieu de montage jusqu'à 15 m sont inclus dans le prix.
- Si vous choisissez le kit économique "Accessoires de montage et fixation", le montage de ce kit est également inclus. Nous le recommandons vivement pour un montage sûr. Il protège efficacement votre produit contre l'humidité et les vents forts.
Pour d'autres accessoires à monter, ainsi que pour l'imprégnation, vous pouvez réserver nos montages supplémentaires en option. Vous les trouverez directement sur le produit de votre choix.
Option 2 - Montage premium - maison et couverture de toit :
Ce kit comprend :
- Toutes les prestations de l'option de montage 1
- Comprend en plus la pose professionnelle de carton bitumé et de bardeaux, de KSK ou de film EPDM. Le matériel n'est pas compris dans la livraison. Pour ce faire, commandez l'un des kits de couverture de toit proposés ou le matériau de votre choix dans la quantité prédéfinie. Veillez à choisir le bon nombre/la bonne taille de membrane/feuille et de profilés ou de bandeaux de finition de toiture. Nous vous conseillons volontiers sur les possibilités !
- Un interlocuteur personnel suit votre projet avec vous, de la commande à la fin du montage.
Pour d'autres accessoires à monter, ainsi que pour l'imprégnation, vous pouvez réserver nos montages supplémentaires en option. Vous les trouverez directement sur le produit de votre choix.
Option 3 - Montage exclusif - maison et couverture de toit + tous les montages supplémentaires optionnels et souhaits particuliers
Vous souhaitez le package complet sans "si" ni "mais", cette option est faite pour vous.
Ce kit comprend :
- Toutes les prestations des options de montage 1+2
- Le montage supplémentaire du set de gouttières adapté
- Le montage supplémentaire du plancher (si le plancher est inclus dans le kit, le montage est déjà inclus dans l'option Basic).
- La pose de l'isolation du sol
- L'imprégnation de votre produit pendant le montage (nécessaire uniquement si votre produit n'a pas déjà été imprégné en usine).
- Les distances de transport plus longues jusqu'au lieu de montage, jusqu'à 40 m, sont comprises dans le prix.
- Nous répondons à vos souhaits particuliers et trouvons des solutions adaptées.
Veuillez noter que les accessoires à monter doivent être commandés en tant qu'accessoires optionnels. Nous ne proposons notre service de montage que pour les accessoires originaux de GartenHaus.
Remarques supplémentaires :
Imprégnation : application dans les règles de l'art (une seule fois) d'un produit d'imprégnation (après montage) sur la face extérieure du produit. Le matériel n'est pas compris dans la livraison. Veuillez commander à cet effet PGH Holzschutzgrund Imprägnierung parmi les accessoires dans la quantité proposée ou le kit de couleurs adapté.
L'imprégnation crée - en combinaison avec un traitement final du bois sous forme de peinture de finition ou de lasure - la base d'une protection durable contre les champignons qui dégradent le bois, le bleuissement, les insectes/les moisissures qui détruisent le bois. La première pierre est ainsi posée pour que vous puissiez profiter longtemps du produit de votre choix ! (Le traitement final du bois ne peut être effectué qu'environ 24 heures après l'imprégnation et ne peut donc pas être proposé ici).
Nous attirons ici votre attention sur le fait qu'une imprégnation en usine - à choisir directement comme variante pour de nombreux modèles - offre une protection plus forte que l'imprégnation après le montage. Dans le cas de l'imprégnation en usine, le produit d'imprégnation est appliqué mécaniquement lors de la fabrication. Cette méthode permet notamment de protéger efficacement les rainures et les languettes.
L'imprégnation de la maison, qu'elle soit effectuée par notre équipe de montage ou en usine, constitue un premier traitement. Pour une protection optimale de votre maison, il est nécessaire, après un temps de séchage, d'appliquer une deuxième couche de lasure ou de peinture de finition adaptée. Nous vous recommandons pour cela nos peintures et lasures PGH de qualité contrôlée de notre gamme d'accessoires.

Le service de montage de GartenHaus en un coup d'œil : Vos avantages
✓ Montage dans les règles de l'art par nos professionnels du montage
✓ Un interlocuteur fixe pour votre projet
✓ Meilleur prix garanti et qualité du leader du marché
Service de montage de GartenHaus GmbH : voici comment cela fonctionne :
Après votre commande, nous convenons avec vous d'un rendez-vous, nous discutons avec vous de votre commande et nous clarifions toutes vos questions.
Nous vous communiquons à temps les coordonnées du partenaire de montage compétent de votre région. Si vous avez des questions ou des souhaits d'ordre technique, vous avez directement un interlocuteur compétent. Avec l'équipe de montage, vous réglez les dernières questions et convenez d'un rendez-vous.
Veuillez noter que les équipes de montage ont besoin d'un délai suffisant pour planifier votre date de montage. Pour que le montage puisse avoir lieu rapidement après la livraison, il est recommandé de réserver le service de montage lors de la commande du produit. Une commande ultérieure du service de montage est éventuellement possible après accord individuel et vérification. Le montage de la gouttière, de l'isolation du sol, du plancher en option ainsi que l'imprégnation peuvent également être réservés en option dans nos accessoires sur le produit.
Pour des raisons de sécurité, veuillez comprendre que seules les pièces d'origine achetées auprès de GartenHaus GmbH sont montées.
Vous trouverez des informations importantes pour la préparation du chantier et la commande de prestations de montage dans le document "Préparation du chantier".documentetLien
Remarque sur la réservation du bon service de montage : En principe, les bons articles de service de montage sont toujours enregistrés sur votre produit. Si vous réservez un montage ultérieurement, veuillez tenir compte des caractéristiques suivantes lors de votre sélection :
- Toit en croupe : avec 4 pans de toit ou plus (voir les photos d'exemple). Tous les autres toits sont considérés comme des "toits standard".



- Plancher : Beaucoup de nos produits sont déjà livrés avec un plancher en usine. Pour ces produits, il convient de choisir le produit de montage correspondant, plancher inclus. Si le plancher ne fait pas partie de la livraison, vous pouvez le commander en tant qu'accessoire séparé. Pour ces planchers, il convient de sélectionner le montage supplémentaire pour planchers.
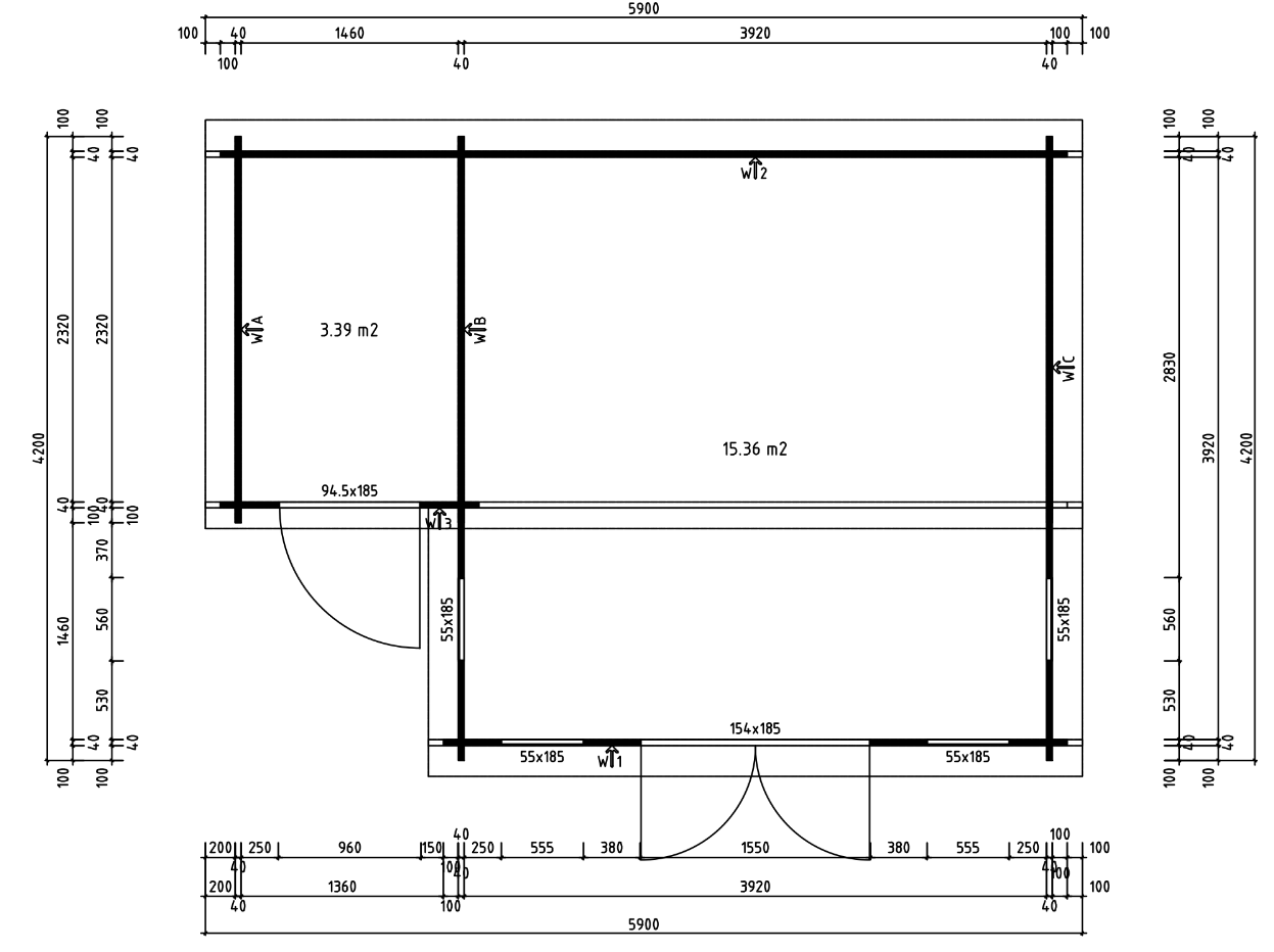
- Pièce supplémentaire : pour les bâtiments avec au moins une pièce séparée par un mur ou un plancher.
- Nombre de mètres carrés : Se réfère à la surface au sol + le débord de toit du produit à monter.
- Type de construction :
Block désigne les maisons dont les madriers sont imbriqués les uns dans les autres (voir image suivante).

Système de vissage fait référence aux produits réalisés en éléments ou en madriers individuels qui doivent être vissés dans le cadre. (voir image suivante)

                                                         
                                                        
                                                                                                                                                                                            CHF 4.159,00